Logo Bosetta Immobilier

réf. GM1-1039 Villa 3 chambres

80 m²
Cap Ferret entre le Phare et l'Océan

 visite 360° 
Cap Ferret • entre le Phare et l'Océan • maison de 80 m² • 3 chambres • terrain 1200 m². Exclusivité.
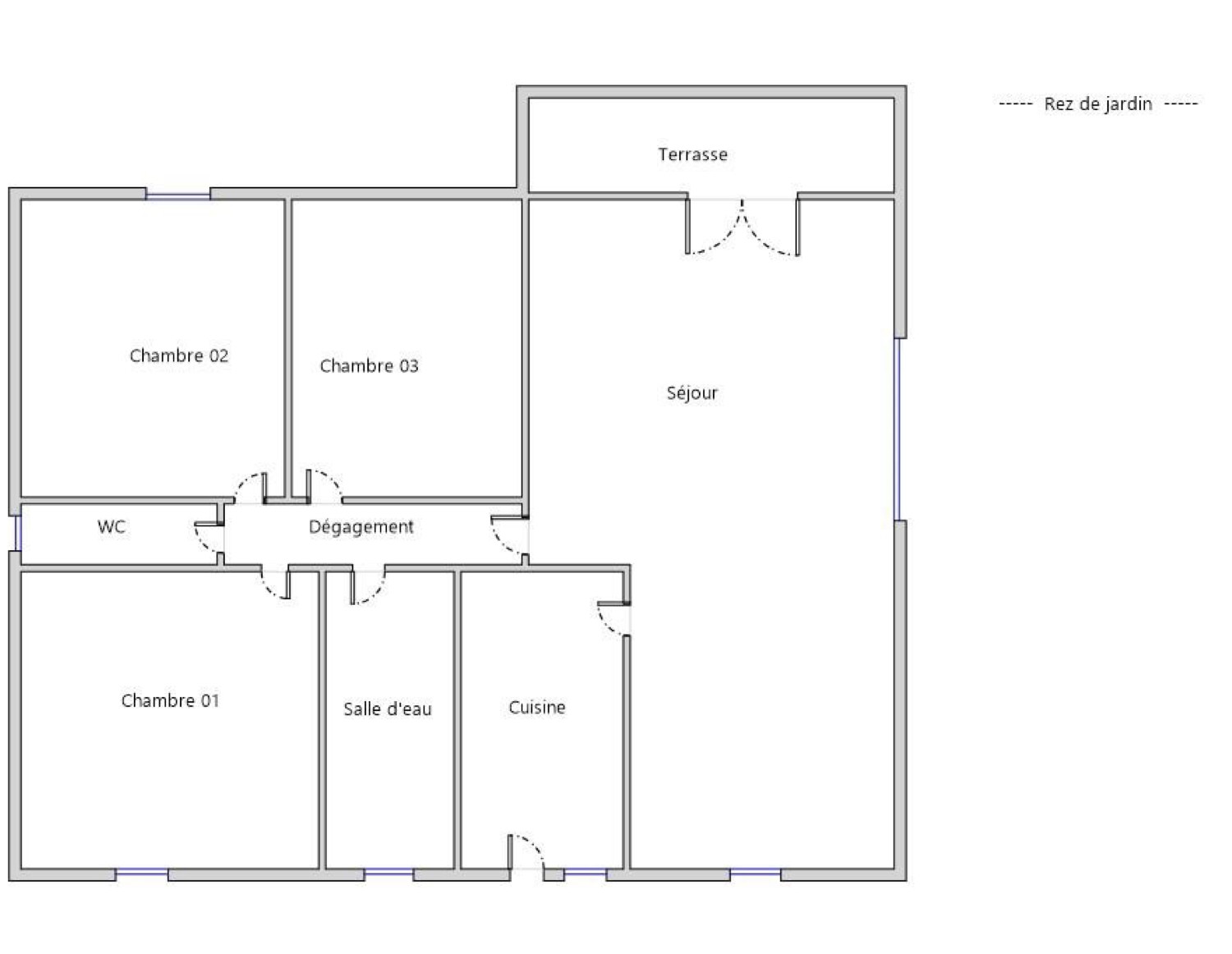
Idéalement située entre le Phare et l'Océan, dans un quartier résidentiel et calme, jolie maison familiale de type basque de 80 m² environ, à moderniser. Double séjour avec belle cheminée ouvrant sur terrasse couverte, cuisine séparée équipée et aménagée, 3 chambres, salle d'eau, wc. Garage. Réfection toiture et ravalement récents (2022). Située en zone UD du PLU du Cap-Ferret, cette parcelle offre une belle possibilité d'extension : l'emprise au sol totale autorisée est de 200 m² environ (soit une surface habitable totale de 160 m² environ). Piscine possible (35 m² maximum).
Pour plus d'informations ou pour organiser une visite (visite sur place ou visio-visite live), merci de contacter Stefany KLEIN au 06 37 22 86 37 ou votre interlocuteur habituel chez BOSETTA IMMOBILIER. Nous sommes également à votre disposition si vous souhaitez vendre ou faire estimer un bien immobilier à Paris ou sur la presqu'île du Cap Ferret.



Diagnostic performances energétiques :

Performance énergétique
logement extrêmement performant
263 kWh/m²/an
8* kg CO₂/m²/an
logement extrêmement peu performant
Performance climatique
* Dont émissions de gaz à effet de serre
peu d'émissions de CO₂
8 kg CO₂/m²/an
émissions de CO₂ très importantes
Montant estimé des dépenses annuelles d'énergie pour un usage standard :
Entre 1320€ et 1820€ par an
Prix moyens des énergies indexés au 1er janvier 2021 (abonnement compris)

Les informations sur les risques auxquels ce bien est exposé sont disponibles sur le site Géorisques https://www.georisques.gouv.fr.
  • Surface : 80 m²
  • Pièces : 5
  • Chambres : 3
  • entre le Phare et l'Océan

BOSETTA lMMOBiliER Tél : 06 37 22 86 37 E-mail : [email protected] www.bosetta-immobilier.com