Logo Bosetta Immobilier

réf. GM1-1148 Appartement 2 chambres

690 000 € FAI 107 m²
St Cloud Val d'Or

 visite 360° 
Saint-Cloud • Val d'Or • appartement 103 m² + balcons • 2/3 chambres • parking. Exclusivité.
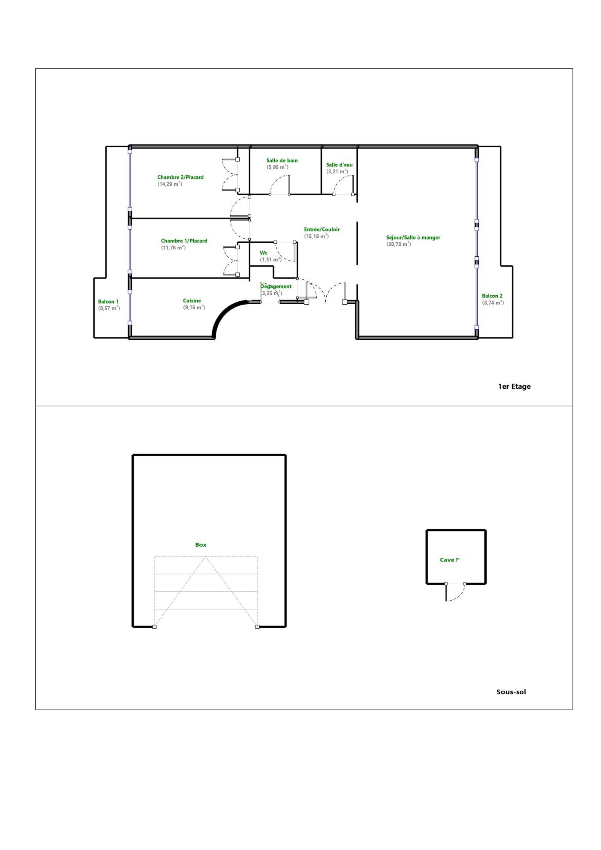
Dans une résidence calme et familiale idéalement située dans le quartier du Val d'Or, appartement traversant au premier étage, très ensoleillé. Entrée, double séjour de 39 m² ouvrant sur balcon exposé sud, cuisine séparée avec office, 2 belles chambres (possibilité 3) ouvrant sur second balcon, salle de bains avec wc, salle d'eau, wc séparés. Cave. Gardien. Commerces, transports (gare du Val d'Or - ligne L), tennis, piscine et écoles à proximité. Possibilité d'acquérir un box (25 000 euros en sus).
Pour plus d'informations ou pour organiser une visite (visite sur place ou visio-visite live), merci de contacter Stefany KLEIN au 06 37 22 86 37 ou votre interlocuteur habituel chez BOSETTA IMMOBILIER. Nous sommes également à votre disposition si vous souhaitez vendre ou faire estimer un bien immobilier à Paris ou sur la presqu'île du Cap Ferret.
  • Surface : 107 m²
  • Pièces : 4
  • Chambres : 2
  • Etage : 1er
  • Année de construction : 1972
  • Charges : 391 € / mois
  • Val d'Or



Diagnostic performances energétiques :

Performance énergétique
logement extrêmement performant
192 kWh/m²/an
38* kg CO₂/m²/an
logement extrêmement peu performant
Performance climatique
* Dont émissions de gaz à effet de serre
peu d'émissions de CO₂
38 kg CO₂/m²/an
émissions de CO₂ très importantes
Montant estimé des dépenses annuelles d'énergie pour un usage standard :
Entre 1710€ et 2350€ par an
Prix moyens des énergies indexés au 1er janvier 2021 (abonnement compris)

Les informations sur les risques auxquels ce bien est exposé sont disponibles sur le site Géorisques https://www.georisques.gouv.fr.

BOSETTA lMMOBiliER Tél : 06 37 22 86 37 E-mail : [email protected] www.bosetta-immobilier.com