Logo Bosetta Immobilier

réf. GM1-1134 Appartement 3 chambres

930 000 € FAI 73 m²
Paris 17ème • Batignolles • Boursault

vidéo    •••    visite 360°
Paris 17ème • Batignolles • Boursault • appartement 73 m² • 2ème étage • 2/3 chambres. Exclusivité.
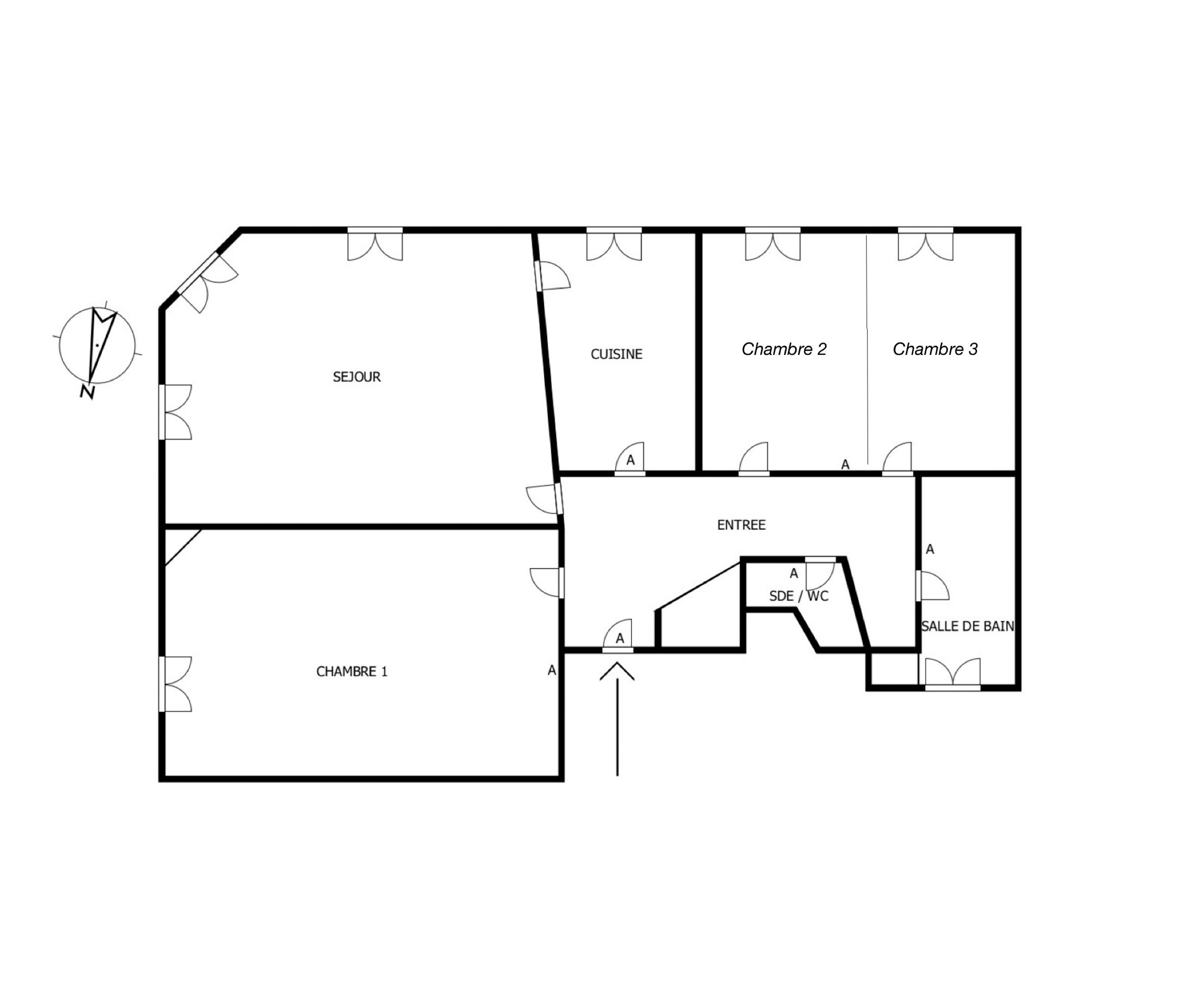
Idéalement situé en plein coeur des Batignolles, dans un petit immeuble ancien, appartement au 2ème étage par escalier comprenant : entrée, séjour d'angle avec cheminée, parquet, moulures très lumineux (exposé sud et est) avec vue dégagée, cuisine séparée, chambre parentale, grande chambre enfant divisible, salle de bains, salle de douche avec wc. Grande cave. Appartement bénéficiant d'un plan optimisé, baigné de lumière dans un quartier vivant et recherché (école Boursault, crèche, commerces et restaurants à proximité immédiate). Lycée Chaptal et métro Rome à 200m.
Pour plus d'informations ou pour organiser une visite (visite sur place ou visio-visite live en zoom), merci de contacter Nuria SIMIAUT au 06 47 03 73 22 ou votre interlocuteur habituel chez BOSETTA IMMOBILIER. Nous sommes également à votre disposition si vous souhaitez vendre ou faire estimer un bien immobilier à Paris ou sur l'ouest parisien.



Diagnostic performances energétiques :

Performance énergétique
logement extrêmement performant
230 kWh/m²/an
50* kg CO₂/m²/an
logement extrêmement peu performant
Performance climatique
* Dont émissions de gaz à effet de serre
peu d'émissions de CO₂
50 kg CO₂/m²/an
émissions de CO₂ très importantes
Montant estimé des dépenses annuelles d'énergie pour un usage standard :
Entre 1540€ et 2120€ par an
Prix moyens des énergies indexés au 1er janvier 2021 (abonnement compris)

Les informations sur les risques auxquels ce bien est exposé sont disponibles sur le site Géorisques https://www.georisques.gouv.fr.
  • Surface : 73 m²
  • Pièces : 4
  • Chambres : 3
  • Etage : 2ème
  • Année de construction : 1889
  • Charges : 270 € / mois
  • 17ème • Batignolles • Boursault

BOSETTA lMMOBiliER Tél : 06 47 03 73 22‬ E-mail : [email protected] www.bosetta-immobilier.com