Logo Bosetta Immobilier

réf. GM1-1120 Appartement 2 chambres

790 000 € FAI 90 m²
Paris 16ème • Murat • Seine

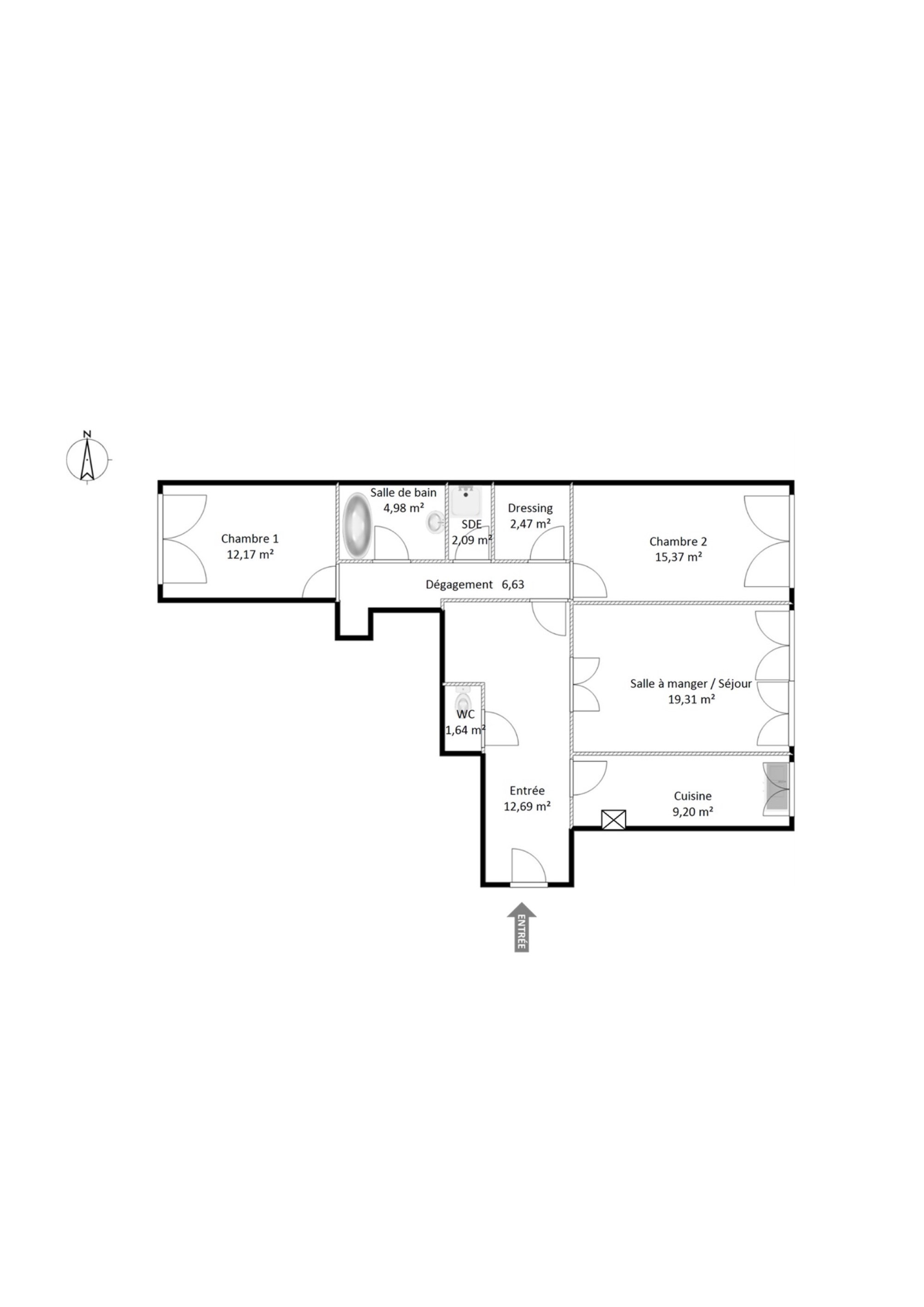
Paris 16ème • Murat • Seine • appartement 86,55 m² carrez + 3 balcons • 9ème étage • 2 chambres.
Au 9ème étage d'un immeuble de 1960 situé boulevard Murat, à deux pas de la Seine, appartement traversant très ensoleillé, à rénover. Entrée, séjour ouvrant sur balcon avec vue dégagée sans vis-à-vis, cuisine séparée (possibilité cuisine américaine), 2 belles chambres (15 et 12 m²) avec balcon, dressing, salle de bains, salle de douche, 2 wc. Nombreux rangements. Cave. Parking en sous-sol. Gardien. Proximité commerces, écoles et transports.
Pour plus d'informations ou pour organiser une visite, merci de contacter Stefany KLEIN au 06 37 22 86 37 ou votre interlocuteur habituel chez BOSETTA IMMOBILIER. Nous sommes également à votre disposition si vous souhaitez vendre ou faire estimer un bien immobilier à Paris ou sur l'ouest parisien.



Diagnostic performances energétiques :

Performance énergétique
logement extrêmement performant
184 kWh/m²/an
40* kg CO₂/m²/an
logement extrêmement peu performant
Performance climatique
* Dont émissions de gaz à effet de serre
peu d'émissions de CO₂
40 kg CO₂/m²/an
émissions de CO₂ très importantes
Montant estimé des dépenses annuelles d'énergie pour un usage standard :
Entre 1260€ et 1750€ par an
Prix moyens des énergies indexés au 1er janvier 2021 (abonnement compris)

Les informations sur les risques auxquels ce bien est exposé sont disponibles sur le site Géorisques https://www.georisques.gouv.fr.
  • Surface : 90 m²
  • Pièces : 3
  • Chambres : 2
  • Etage : 9ème
  • Année de construction : 1963
  • Charges : 420 € / mois
  • 16ème • Murat • Seine

BOSETTA lMMOBiliER Tél : 06 37 22 86 37 E-mail : [email protected] www.bosetta-immobilier.com