Logo Bosetta Immobilier

réf. GM1-1090 Appartement 4 chambres

1 370 000 € FAI 146 m²
Paris 17ème • Péreire • Ternes

Paris 17ème • Péreire • Ternes • appartement 146 m² • 4 chambres.
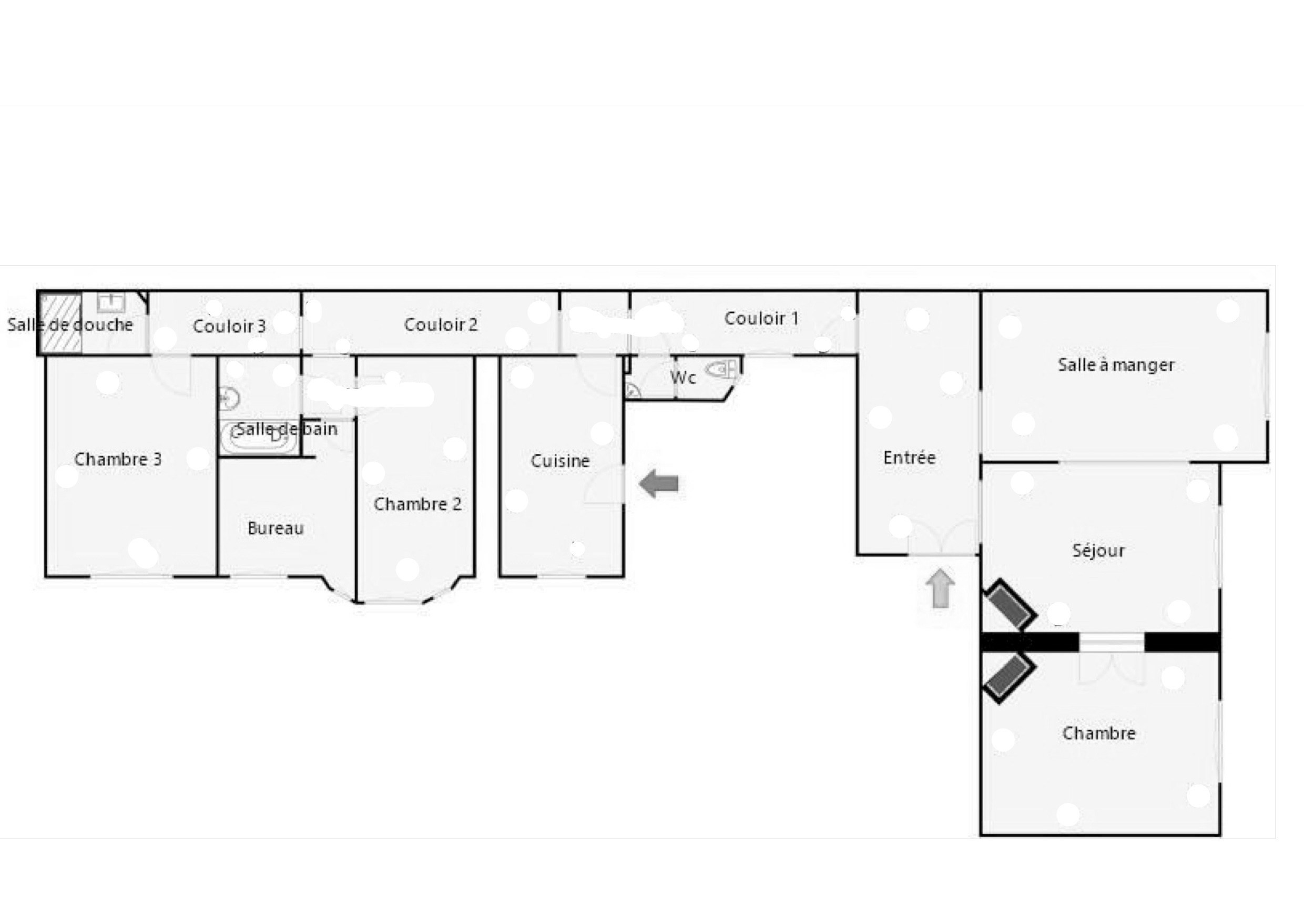
Dans un bel immeuble en pierre de taille idéalement situé boulevard Péreire (côté soleil), appartement familial traversant, lumineux et calme, en rez-de-chaussée, bénéficiant d'une très jolie vue dégagée des 2 côtés (sur les jardins de la promenade Péreire et sur cour arborée). Entrée, double séjour de 38 m² avec parquet, moulures et cheminée, cuisine séparée, 3 chambres, bureau (ou 4ème chambre), salle de bains, salle de douche, wc séparés. Grande cave. Gardien. Excellente sectorisation scolaire et proximité Blanche de Castille et Sainte-Ursule. Possibilité profession libérale.
Pour plus d'informations ou pour organiser une visite, merci de contacter Frank BOSETTA au 06 72 14 65 96 ou votre interlocuteur habituel chez BOSETTA IMMOBILIER. Nous sommes également à votre disposition si vous souhaitez vendre ou faire estimer un bien immobilier à Paris ou sur l'ouest parisien.



Diagnostic performances energétiques :

Performance énergétique
logement extrêmement performant
196 kWh/m²/an
42* kg CO₂/m²/an
logement extrêmement peu performant
Performance climatique
* Dont émissions de gaz à effet de serre
peu d'émissions de CO₂
42 kg CO₂/m²/an
émissions de CO₂ très importantes
Montant estimé des dépenses annuelles d'énergie pour un usage standard :
Entre 2300€ et 3140€ par an
Prix moyens des énergies indexés au 1er janvier 2021 (abonnement compris)

Les informations sur les risques auxquels ce bien est exposé sont disponibles sur le site Géorisques https://www.georisques.gouv.fr.
  • Surface : 146 m²
  • Pièces : 6
  • Chambres : 4
  • Etage : rez-de-chaussée
  • Année de construction : 1930
  • Charges : 778 € / mois
  • 17ème • Péreire • Ternes

BOSETTA lMMOBiliER Tél : 06 72 14 65 96 E-mail : [email protected] www.bosetta-immobilier.com