Logo Bosetta Immobilier

réf. GM1-991 Appartement 3 chambres

121 m²
St Cloud Val d'Or

Saint-Cloud • Val d'Or • appartement 114 m² + terrasse 13 m² + balcon 8 m² • 3ème étage • vue sur Paris • 3 chambres.Exclusivité.
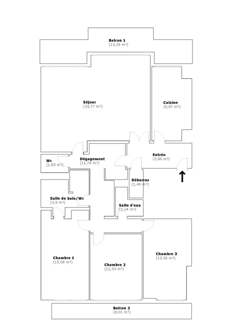
Dans une résidence calme et familiale idéalement située dans le quartier du Val d'Or, appartement traversant ensoleillé à rénover comprenant : entrée, double séjour (34 m²) ouvrant sur balcon/terrasse de 13 m² exposé Est (vue Tour Eiffel), cuisine séparée (possibilité cuisine américaine), 3 belles chambres sur jardin (15, 13 et 12 m²) ouvrant sur balcon, salle de bains avec wc, salle de douche, wc d'invités. Nombreux placards. Cave. Box (possibilité d'acquérir un second box 25 000 euros en sus). Gardien. Commerces, transports (gare du Val d'Or) et écoles à proximité. Pour plus d'informations ou pour organiser une visite, merci de contacter Stefany KLEIN au 06 37 22 86 37 ou votre interlocuteur habituel chez BOSETTA IMMOBILIER. Nous sommes également à votre disposition si vous souhaitez vendre ou faire estimer un bien immobilier à Paris ou sur l'ouest parisien.
  • Surface : 121 m²
  • Pièces : 5
  • Chambres : 3
  • Etage : 3ème
  • Année de construction : 1969
  • Val d'Or



Diagnostic performances energétiques :

Performance énergétique
logement extrêmement performant
195 kWh/m²/an
42* kg CO₂/m²/an
logement extrêmement peu performant
Performance climatique
* Dont émissions de gaz à effet de serre
peu d'émissions de CO₂
42 kg CO₂/m²/an
émissions de CO₂ très importantes
Montant estimé des dépenses annuelles d'énergie pour un usage standard :
Entre 1180€ et 1650€ par an
Prix moyens des énergies indexés au 1er janvier 2021 (abonnement compris)

Les informations sur les risques auxquels ce bien est exposé sont disponibles sur le site Géorisques https://www.georisques.gouv.fr.

BOSETTA lMMOBiliER Tél : 06 37 22 86 37 E-mail : [email protected] www.bosetta-immobilier.com