Logo Bosetta Immobilier

réf. GM1-979 Appartement 2 chambres

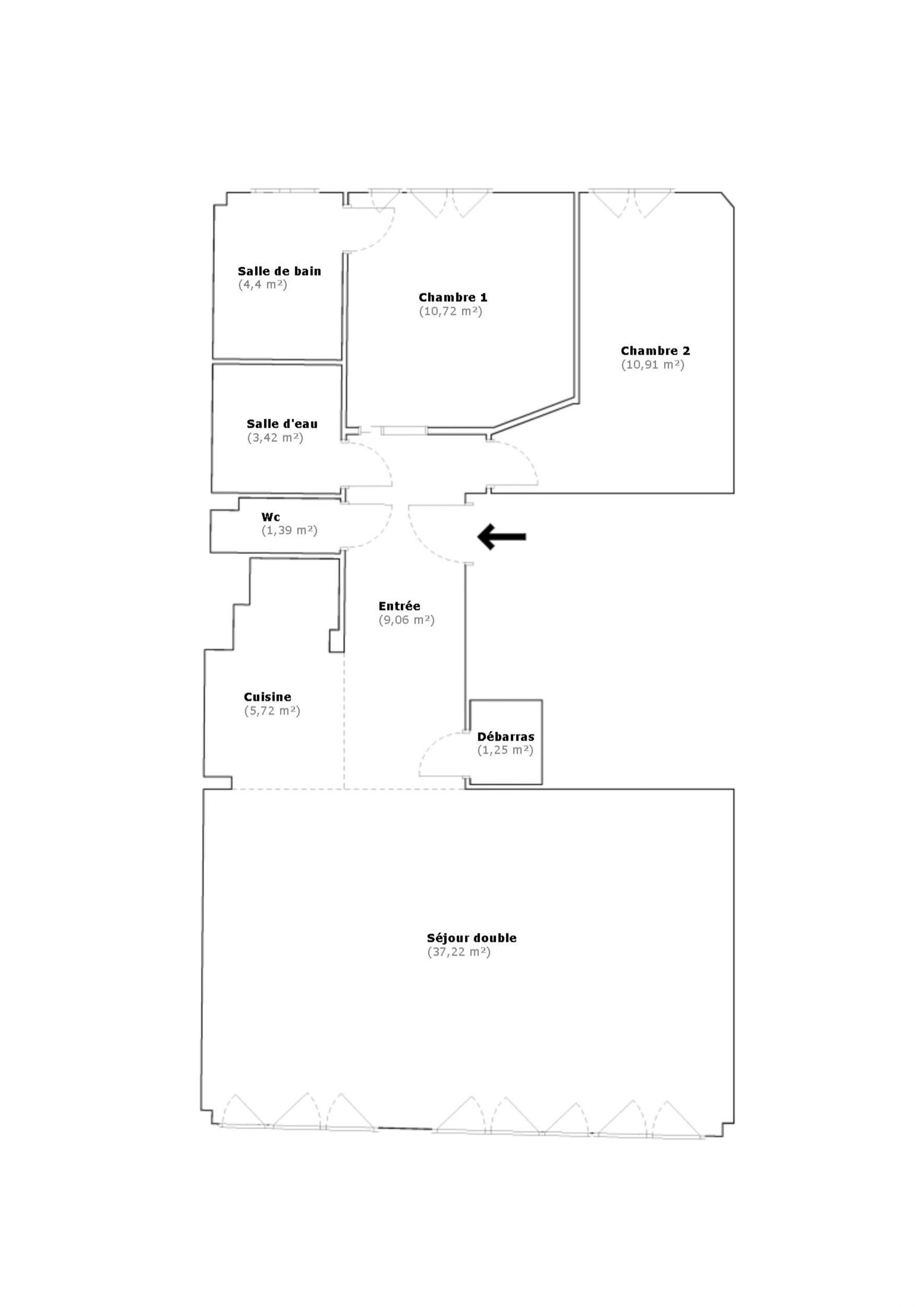
84 m²
Paris 17ème • rue de Courcelles

 visite 360° 
Paris 17ème • rue de Courcelles • appartement 84 m² • 3ème étage • 2/3 chambres. Exclusivité.
Dans un immeuble récent idéalement situé rue de Courcelles entre la rue Pierre Demours et la Place Péreire, appartement en très bon état comprenant : entrée, double séjour de 37 m² très ensoleillé (exposé sud-ouest), cuisine américaine, 2 chambres totalement au calme sur cour (possibilité 3ème chambre), salle de bains, salle de douche, wc séparé. Cave. Emplacement recherché au pied des commerces, transports et écoles, à quelques minutes du Parc Monceau.
Pour plus d'informations ou pour organiser une visite, merci de contacter Nuria SIMIAUT au 06 47 03 73 22 ou votre interlocuteur habituel chez BOSETTA IMMOBILIER. Nous sommes également à votre disposition si vous souhaitez vendre ou faire estimer un bien immobilier à Paris ou sur l'ouest parisien.
  • Surface : 84 m²
  • Pièces : 4
  • Chambres : 2
  • Etage : 3ème
  • Année de construction : 1978
  • 17ème • rue de Courcelles

BOSETTA lMMOBiliER Tél : 06 47 03 73 22 E-mail : [email protected] www.bosetta-immobilier.com