Logo Bosetta Immobilier

réf. GM1-964 Appartement 2 chambres

89 m²
Paris 6ème • Saint-Germain • Beaux-Arts

 visite 360° 
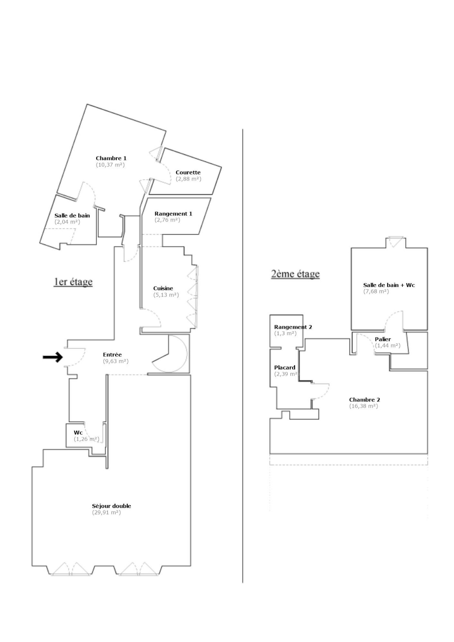
Paris 6ème • Saint-Germain • Beaux-Arts • appartement 84 m² carrez (93 m² au sol) + petite terrasse • 2 chambres.
Idéalement situé en plein cœur de Saint-Germain des Prés, dans un immeuble ancien récemment ravalé, appartement en duplex au premier étage à rénover. Entrée, double séjour de 30 m², cuisine séparée, 2 belles chambres dont une en mezzanine avec dressing et l'autre ouvrant sur une petite terrasse, 2 salles de bains, 2 wc.
Pour plus d'informations ou pour organiser une visite (visite sur place ou visio-visite live), merci de contacter Frank BOSETTA au 06 72 14 65 96 ou votre interlocuteur habituel chez BOSETTA IMMOBILIER. Nous sommes également à votre disposition si vous souhaitez vendre ou faire estimer un bien immobilier à Paris ou sur l'ouest parisien.
  • Surface : 89 m²
  • Pièces : 4
  • Chambres : 2
  • Etage : 1er
  • 6ème • Saint-Germain • Beaux-Arts

BOSETTA lMMOBiliER Tél : 06 72 14 65 96 E-mail : [email protected] www.bosetta-immobilier.com