Logo Bosetta Immobilier

réf. GM1-951 Appartement 2 chambres

49 m²
Paris 15ème • Grenelle • rue du Commerce

Paris 15ème • Grenelle • Commerce • appartement 49 m² • 2 chambres. Exclusivité.
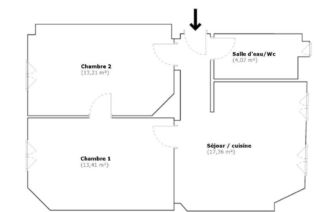
Dans un immeuble ancien idéalement situé à deux pas de la rue du Commerce, appartement traversant, calme et lumineux au premier étage comprenant : entrée, pièce à vivre de 17 m² avec cuisine ouverte, 2 belles chambres (13 m² chacune), salle de douche, wc. Cave. Proximité commerces et transports. Professions libérales autorisées.
Pour plus d'informations ou pour organiser une visite, merci de contacter Sabrina & Frédéric PALLAS au 07 88 31 98 18 ou votre interlocuteur habituel chez BOSETTA IMMOBILIER. Nous sommes également à votre disposition si vous souhaitez vendre ou faire estimer un bien immobilier à Paris ou sur l'ouest parisien.
  • Surface : 49 m²
  • Pièces : 3
  • Chambres : 2
  • Etage : 1er
  • Année de construction : 1930
  • 15ème • Grenelle • rue du Commerce

BOSETTA lMMOBiliER Tél : 07 88 31 98 18 E-mail : [email protected] www.bosetta-immobilier.com