Logo Bosetta Immobilier

réf. GM1-892 Appartement 2 chambres

75 m²
Paris 2ème • Bourse

 visite 360° 
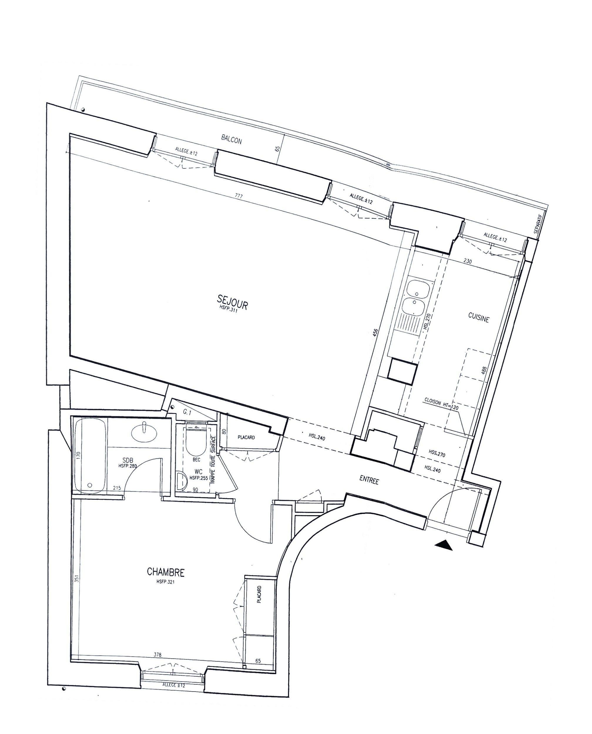
Paris 2ème • Bourse • appartement 72 m² + balcon filant • 2ème étage • 1 (ou 2) chambre(s). Exclusivité.
Dans un bel immeuble Haussmannien de 1870 idéalement situé Place de la Bourse, appartement comprenant : entrée, double séjour de 33 m² avec balcon filant, parquet point de Hongrie, cuisine ouverte, belle chambre de 16 m² (possibilité 2ème chambre), salle de bains, wc séparé. Cave.
Pour plus d'informations ou pour organiser une visite (visite sur place ou visio-visite live), merci de contacter Alain ETJEMESIAN au 06 49 35 21 13 ou votre interlocuteur habituel chez BOSETTA IMMOBILIER. Nous sommes également à votre disposition si vous souhaitez vendre ou faire estimer un bien immobilier à Paris ou sur l'ouest parisien.
  • Surface : 75 m²
  • Pièces : 3
  • Chambres : 2
  • Etage : 2ème
  • Année de construction : 1870
  • 2ème • Bourse

BOSETTA lMMOBiliER Tél : 06 49 35 21 13 E-mail : [email protected] www.bosetta-immobilier.com