Logo Bosetta Immobilier

réf. GM1-869 Appartement 2 chambres

74 m²
Paris 4ème • rue du Trésor • Marais

 visite 360° 
Paris 4ème • Trésor • Marais • appartement 74 m² • 3ème étage • 1 (ou 2) chambre(s). Exclusivité.
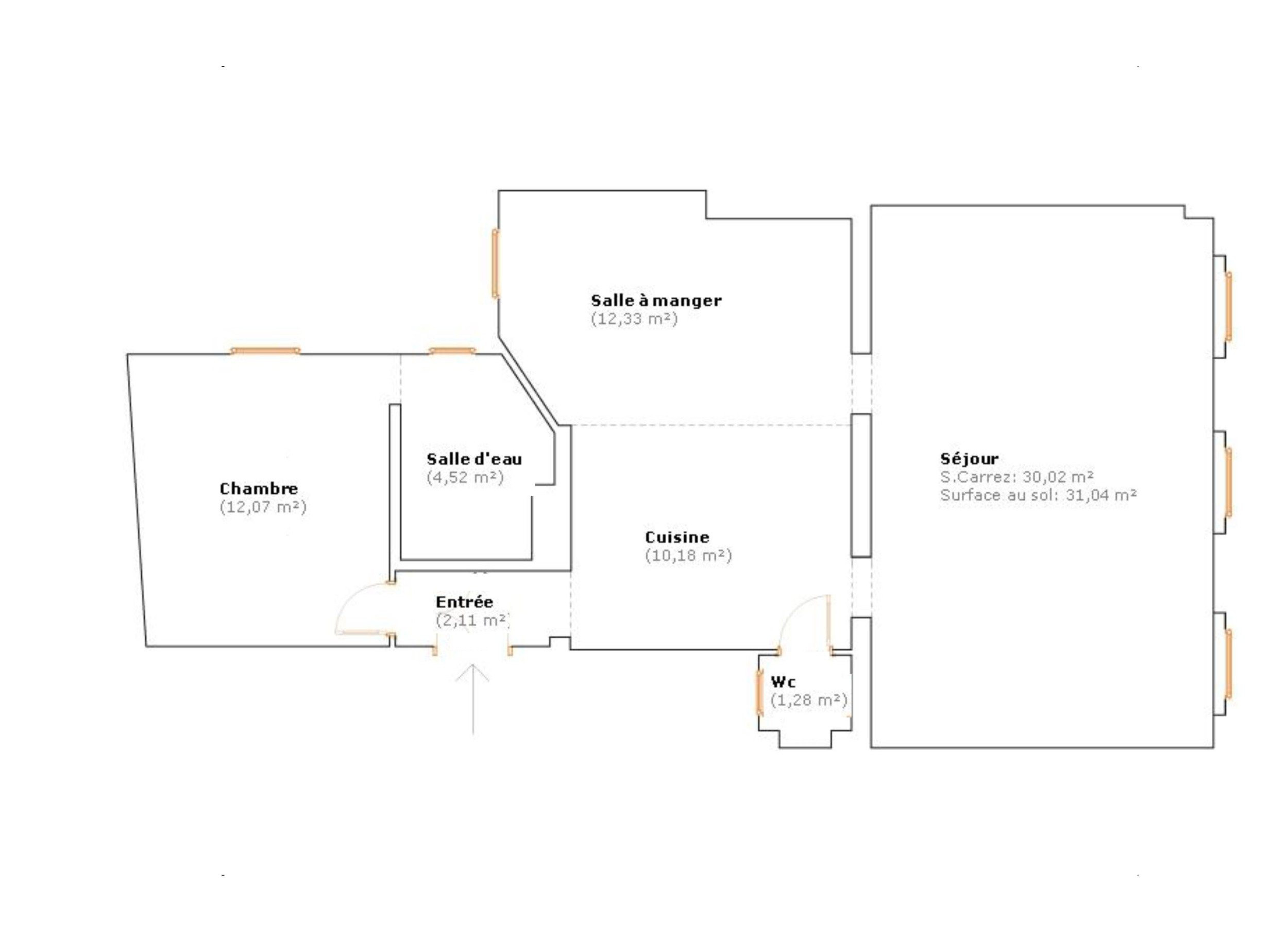
Idéalement situé en plein coeur du Marais, dans une charmante impasse piétonne arborée (rue du Trésor) entre l'Hôtel de Ville et la Place des Vosges, dans un immeuble de 1880 en pierre de taille avec ascenseur, appartement très lumineux bénéficiant d'un excellent plan. Entrée, double séjour de 31 m² avec parquet, cheminée et moulures, salle à manger (ou 2ème chambre), cuisine ouverte, chambre de 12 m² totalement au calme sur cour, salle de douche, wc. Cave. Electricité aux normes. Proche commerces et transports.
Pour plus d'informations ou pour organiser une visite (visite sur place ou visio-visite live), merci de contacter Alain ETJEMESIAN au 06 49 35 21 13 ou votre interlocuteur habituel chez BOSETTA IMMOBILIER. Nous sommes également à votre disposition si vous souhaitez vendre ou faire estimer un bien immobilier à Paris ou sur l'ouest parisien.
  • Surface : 74 m²
  • Pièces : 4
  • Chambres : 2
  • Etage : 3ème
  • Année de construction : 1880
  • 4ème • rue du Trésor • Marais

BOSETTA lMMOBiliER Tél : 06 49 35 21 13 E-mail : [email protected] www.bosetta-immobilier.com