Logo Bosetta Immobilier

réf. GM1-814 Appartement 3 chambres

139 m²
Paris 16ème • Village d'Auteuil

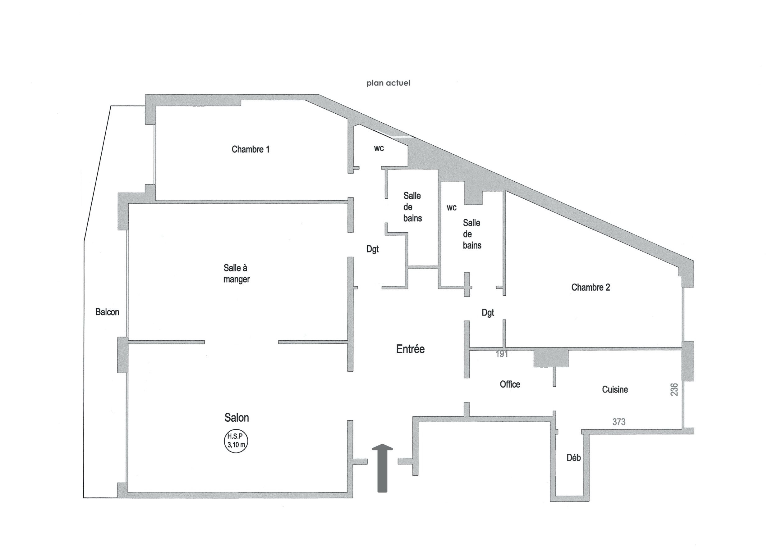
Paris 16ème • Village d'Auteuil • appartement 135 m² + balcon filant • 4ème étage • 2/3 chambres.
Au 4ème étage d'un immeuble récent idéalement situé au coeur du Village d'Auteuil, appartement traversant à rénover comprenant : entrée, grand double séjour (55 m²), cuisine séparée, 2 belles chambres (18 et 16 m²), possibilité 3ème chambre, 2 salles de bains, buanderie, 2 wc. Très beaux volumes (hauteur sous plafond : 3,07 m). Cave. Gardien. Possibilité d'acquérir en sus un box fermé dans l'immeuble (52 000 euros). Proche commerces, transports et écoles.
Pour plus d'informations ou pour organiser une visite (visite sur place ou visio-visite live), merci de contacter Frank BOSETTA au 06 72 14 65 96 ou votre interlocuteur habituel chez BOSETTA IMMOBILIER. Nous sommes également à votre disposition si vous souhaitez vendre ou faire estimer un bien immobilier à Paris ou sur l'ouest parisien.
  • Surface : 139 m²
  • Pièces : 4
  • Chambres : 3
  • Etage : 4ème
  • Année de construction : 1971
  • 16ème • Village d'Auteuil

BOSETTA lMMOBiliER Tél : 06 72 14 65 96 E-mail : [email protected] www.bosetta-immobilier.com