Logo Bosetta Immobilier

réf. GM1-767 Appartement 3 chambres

156 m²
Paris 17ème • Courcelles • Prony

 vidéo 
VOUS SOUHAITEZ VISITER CE BIEN ? NOUS VOUS PROPOSONS UNE VISITE VIRTUELLE GUIDÉE A DISTANCE. CONTACTEZ-NOUS POUR PRENDRE RENDEZ-VOUS.
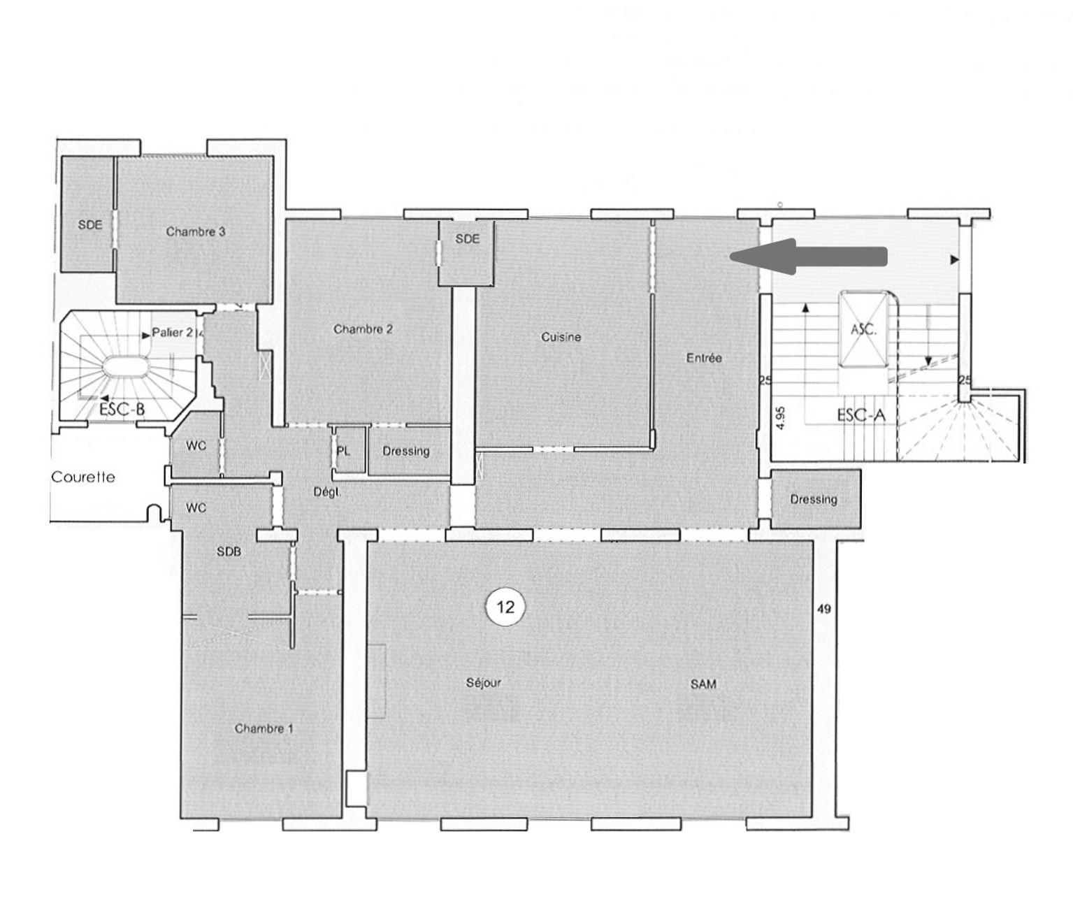
Paris 17ème • Courcelles • Prony • appartement 156 m² • 3 chambres. Exclusivité.
Au premier étage d'un bel immeuble haussmannien, appartement familial traversant comprenant : entrée, double séjour de 54 m² avec parquet en point de Hongrie, moulures et cheminée, grande cuisine dînatoire face au séjour, 3 chambres (dont 2 totalement au calme sur grande cour lumineuse), 3 salles de douche, 2 dressings, 2 wc. Grande cave. Gardienne. Excellent plan. Beaux volumes (hauteur sous plafond : 3 m). Possibilité parking en location à 50 m. Possibilité profession libérale.
Pour plus d'informations ou pour organiser une visite, merci de contacter Frank BOSETTA au 06 72 14 65 96 ou votre interlocuteur habituel chez BOSETTA IMMOBILIER. Nous sommes également à votre disposition si vous souhaitez vendre ou faire estimer un bien immobilier à Paris ou sur l'ouest parisien.
  • Surface : 156 m²
  • Pièces : 5
  • Chambres : 3
  • Etage : 1er
  • Année de construction : 1900
  • 17ème • Courcelles • Prony

BOSETTA lMMOBiliER Tél : 06 72 14 65 96 E-mail : [email protected] www.bosetta-immobilier.com