Logo Bosetta Immobilier

réf. GM1-761 Appartement 4 chambres

94 m²
St Cloud Val d'Or

 vidéo 
VOUS SOUHAITEZ VISITER CE BIEN ? NOUS VOUS PROPOSONS UNE VISITE VIRTUELLE GUIDÉE A DISTANCE. CONTACTEZ-NOUS POUR PRENDRE RENDEZ-VOUS.
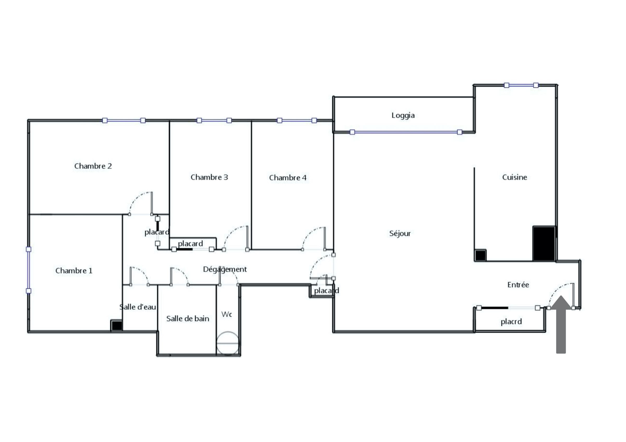
Saint-Cloud • Val d'Or • appartement 92 m² + balcon 6 m² • 5ème étage • 4 chambres.
Dans une résidence calme et familiale avec un parc arboré et terrains de tennis privés situé dans le quartier du Val d'Or, appartement très ensoleillé (orienté ouest) comprenant : entrée, belle pièce à vivre de 29 m² ouvrant sur le balcon avec cuisine américaine entièrement équipée, 4 chambres (11, 10, 10 et 9 m²), salle de bains, salle d'eau, wc séparés. Nombreux placards. Cave. Gardien. Electricité aux normes. Commerces, transports (gare du Val d'Or) et écoles à proximité.
Pour plus d'informations ou pour organiser une visite, merci de contacter Stefany KLEIN au 06 37 22 86 37 ou votre interlocuteur habituel chez BOSETTA IMMOBILIER. Nous sommes également à votre disposition si vous souhaitez vendre ou faire estimer un bien immobilier à Paris ou sur l'ouest parisien.
  • Surface : 94 m²
  • Pièces : 5
  • Chambres : 4
  • Etage : 5ème
  • Année de construction : 1956
  • Val d'Or

BOSETTA lMMOBiliER Tél : 06 37 22 86 37 E-mail : [email protected] www.bosetta-immobilier.com