Logo Bosetta Immobilier

réf. GM1-707 Appartement 3 chambres

168 m²
Paris 17ème • Courcelles • Prony

 vidéo 
Paris 17ème • Courcelles • Prony • appartement 168 m² • 4ème étage • 3 chambres.
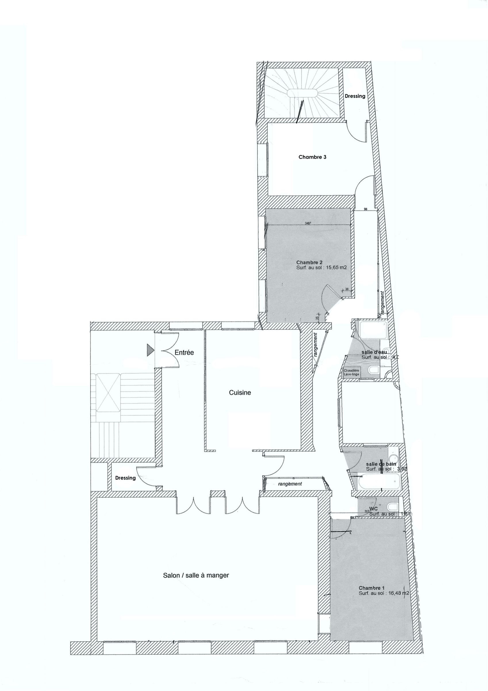
Dans un bel immeuble haussmannien, appartement traversant en parfait état comprenant : entrée, double séjour de 54 m² avec parquet en point de Hongrie, moulures, cheminée et balcon filant, grande cuisine américaine dînatoire totalement équipée, 3 belles chambres (18, 15 et 13 m²) dont 2 sur vaste cour ensoleillée, 2 dressings, salle de bains, salle de douche, 2 wc. Grande cave. Gardienne. Calme et ensoleillé. Excellent plan. Gaz et électricité aux normes. Possibilité parking en location à 50 m. Pour plus d'informations ou pour organiser une visite, merci de contacter Frank BOSETTA au 06 72 14 65 96 ou votre interlocuteur habituel chez BOSETTA IMMOBILIER. Nous sommes également à votre disposition si vous souhaitez vendre ou faire estimer un bien immobilier à Paris 17ème, 16ème, 8ème, 9ème ou à Neuilly.
  • Surface : 168 m²
  • Pièces : 5
  • Chambres : 3
  • Etage : 4ème
  • Année de construction : 1900
  • 17ème • Courcelles • Prony

BOSETTA lMMOBiliER Tél : 06 72 146 596 E-mail : [email protected] www.bosetta-immobilier.com