Logo Bosetta Immobilier

réf. GM1-581 Appartement 3 chambres

130 m²
Paris 17ème / Courcelles / Villa Monceau

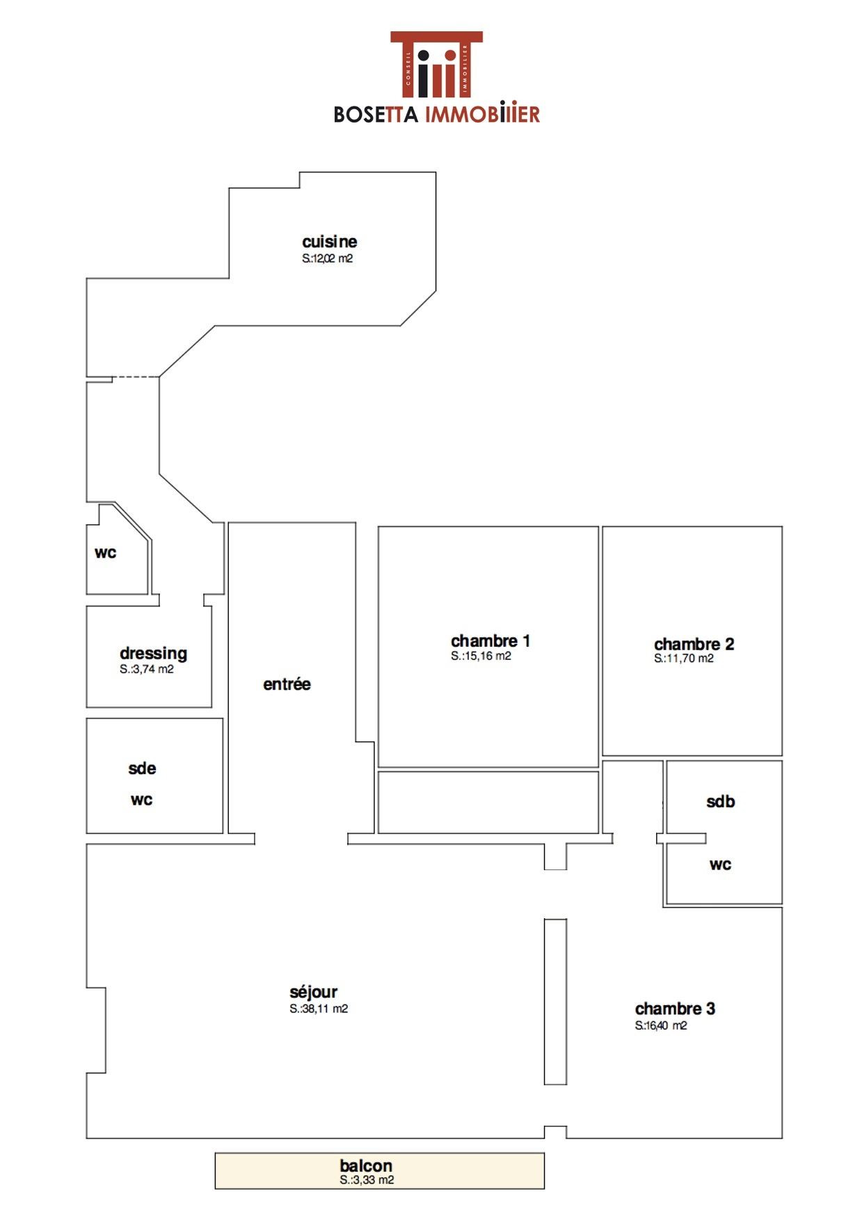
Paris 17ème • Courcelles • Villa Monceau • appartement 130 m² • 2ème étage • 3 chambres. Exclusivité.
Dans un immeuble haussmannien idéalement situé au calme dans la très élégante Villa Monceau, appartement totalement rénové avec des matériaux de qualité comprenant : entrée, double séjour de 38 m² avec parquet, moulures, cheminées et balcon filant, cuisine entièrement équipée avec électroménager haut de gamme (Miele), 3 belles chambres (17, 15 et 12 m²), dressing, salle de bains, salle de douche, 3 wc. Beaux volumes (hauteur sous plafond : 3 m). Electricité et gaz aux normes. Grande double cave (18 m²) dont une partie aménagée en cave à vin. Pour plus d'informations ou pour organiser une visite, merci de contacter Frank BOSETTA au 06 72 14 65 96 ou votre interlocuteur habituel chez BOSETTA IMMOBILIER. Nous sommes également à votre disposition si vous souhaitez vendre ou faire estimer un bien immobilier à Paris 17ème, 16ème, 8ème, 9ème ou à Neuilly.
  • Surface : 130 m²
  • Pièces : 5
  • Chambres : 3
  • Etage : 2ème
  • Année de construction : 1900
  • 17ème / Courcelles / Villa Monceau

BOSETTA lMMOBiliER Tél : 0 672 146 596 E-mail : [email protected] www.bosetta-immobilier.com