Logo Bosetta Immobilier

réf. GM1-1102 Appartement 2 chambres

80 m²
Boulogne Billancourt Silly - Gallieni

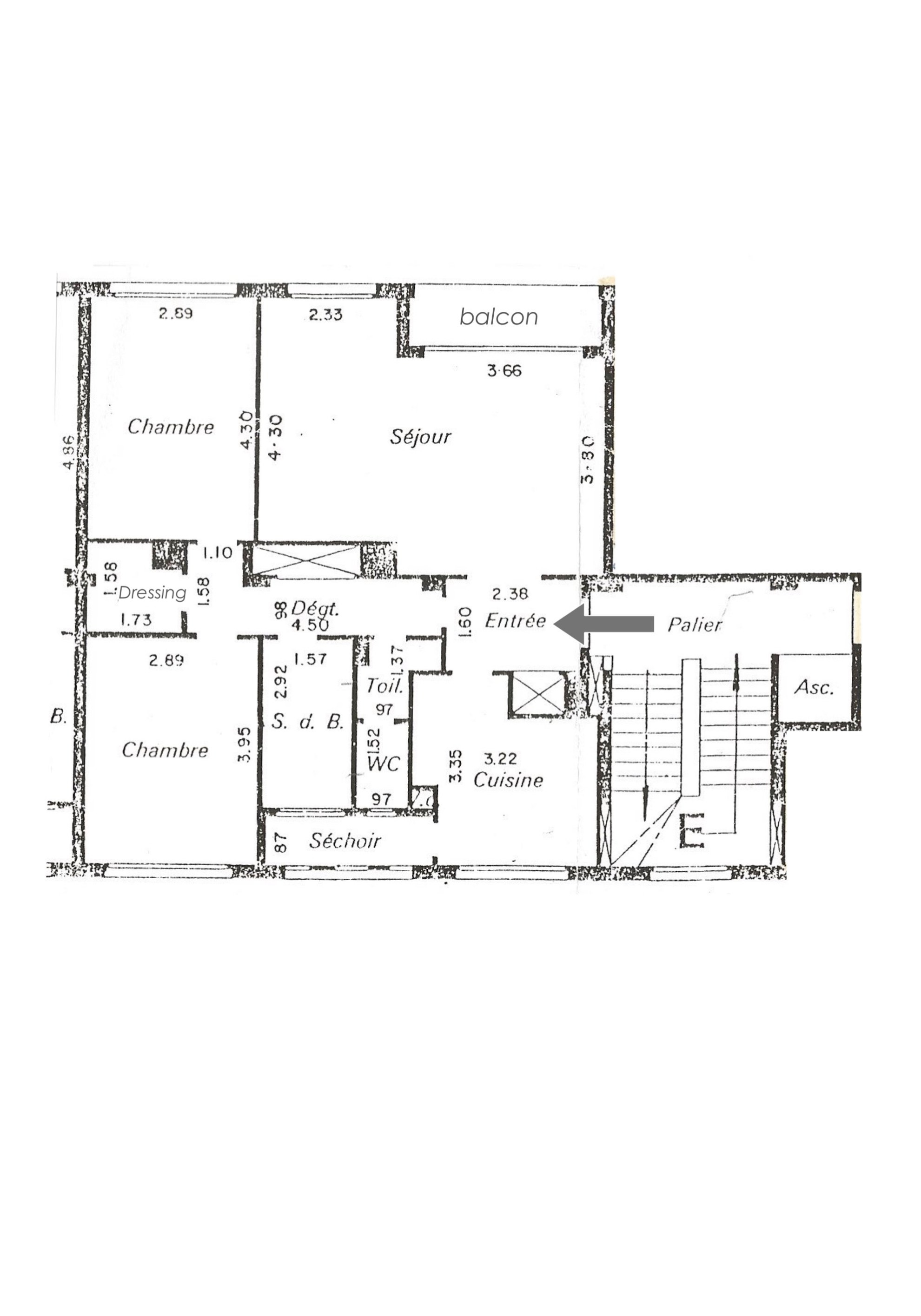
Boulogne • Silly - Gallieni • appartement 79 m² + balcon • 3ème étage • 2 chambres. Exclusivité.
Dans une résidence très recherchée pour son grand parc privatif, appartement à rénover, très ensoleillé (orienté sud), totalement au calme sur jardin. Entrée, double séjour avec grandes portes-fenêtres ouvrant sur large balcon surplombant le parc, cuisine séparée, 2 belle chambres, salle de bains, buanderie, wc. Cave. Excellent plan sans perte de place. Vue dégagée. Gardien. Local vélos.
Pour plus d'informations ou pour organiser une visite (visite sur place ou visio-visite live en zoom), merci de contacter Frank BOSETTA au 06 72 14 65 96 ou votre interlocuteur habituel chez BOSETTA IMMOBILIER. Nous sommes également à votre disposition si vous souhaitez vendre ou faire estimer un bien immobilier à Paris ou sur l'ouest parisien.
  • Surface : 80 m²
  • Pièces : 4
  • Chambres : 2
  • Etage : 3ème
  • Année de construction : 1957
  • Silly - Gallieni



Diagnostic performances energétiques :

Performance énergétique
logement extrêmement performant
301 kWh/m²/an
65* kg CO₂/m²/an
logement extrêmement peu performant
Performance climatique
* Dont émissions de gaz à effet de serre
peu d'émissions de CO₂
65 kg CO₂/m²/an
émissions de CO₂ très importantes
Montant estimé des dépenses annuelles d'énergie pour un usage standard :
Entre 1300€ et 1700€ par an
Prix moyens des énergies indexés au 1er janvier 2021 (abonnement compris)

Les informations sur les risques auxquels ce bien est exposé sont disponibles sur le site Géorisques https://www.georisques.gouv.fr.

BOSETTA lMMOBiliER Tél : 06 72 14 65 96 E-mail : [email protected] www.bosetta-immobilier.com