Logo Bosetta Immobilier

réf. GM1-1089 Maison de Ville 4 chambres

147 m²
Le Bouscat Barrière du Médoc

Le Bouscat • Barrière du Médoc • maison familiale 147 m² • 4 chambres • jardin.
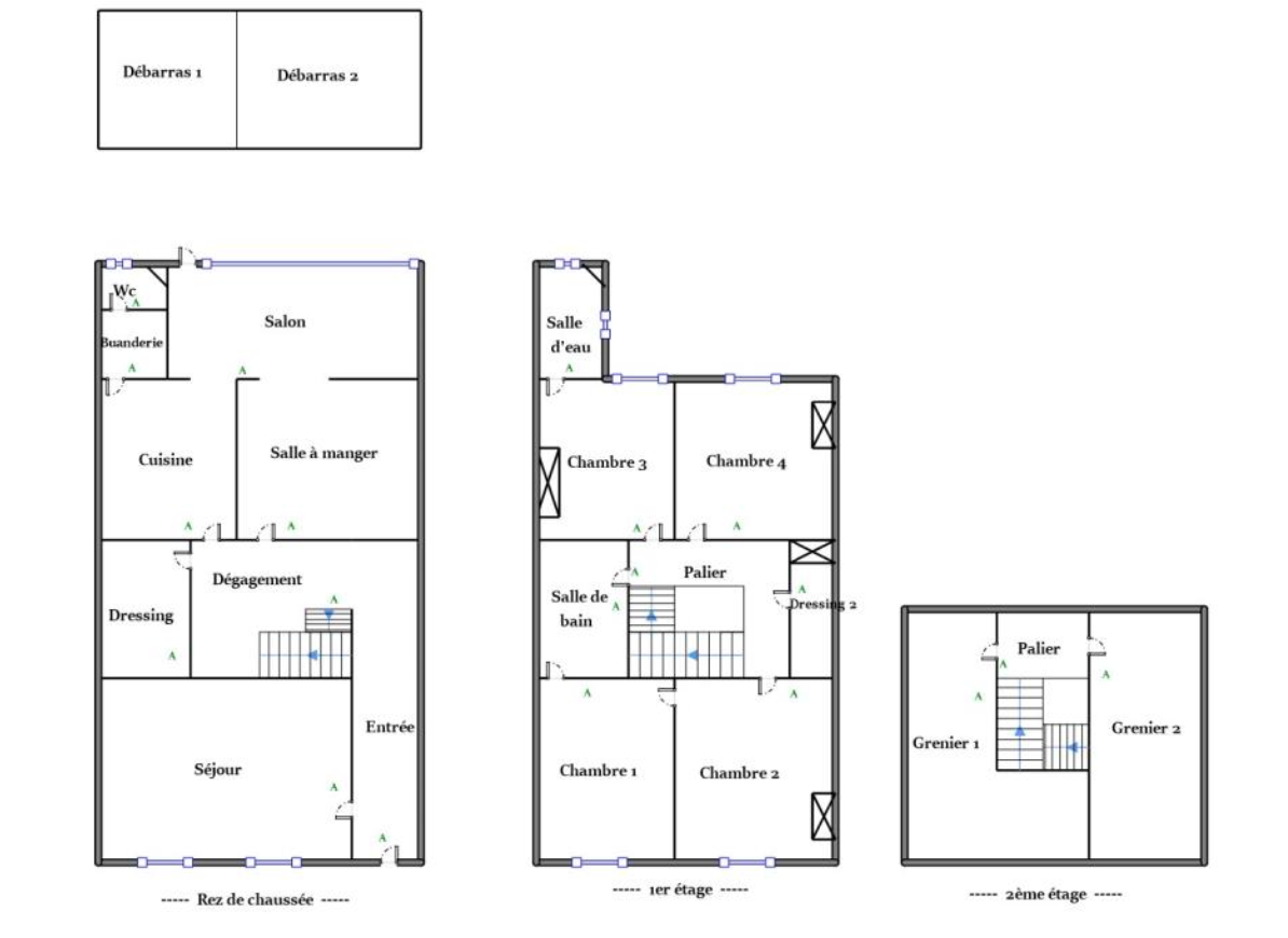
Idéalement située à deux pas de la Barrière du Médoc, dans une rue calme, maison en pierre s’élevant sur 3 niveaux, à rénover. En rez-de-jardin : entrée, salon, salle à manger, séjour donnant sur jardin, cuisine séparée, arrière cuisine, vestiaire, wc. Au 1er étage : 3 belles chambres, salle de bains, salle d’eau avec wc, bureau (ou chambre enfant). Grenier aménageable. Un chai situé au fond du jardin vient compléter l’ensemble. A 5 minutes de plusieurs écoles de renom, à quelques pas des commerces, du parc Bordelais et des transports (bus + tramway ligne D).
Pour plus d'informations ou pour organiser une visite, merci de contacter Hermine MEILLAN MARCONI au 06 81 59 55 42 ou votre interlocuteur habituel chez BOSETTA IMMOBILIER. Nous sommes également à votre disposition si vous souhaitez vendre ou faire estimer un bien immobilier à Bordeaux ou sur le Bassin d’Arcachon.
  • Surface : 147 m²
  • Pièces : 5
  • Chambres : 4
  • Barrière du Médoc



Diagnostic performances energétiques :

Performance énergétique
logement extrêmement performant
254 kWh/m²/an
55* kg CO₂/m²/an
logement extrêmement peu performant
Performance climatique
* Dont émissions de gaz à effet de serre
peu d'émissions de CO₂
55 kg CO₂/m²/an
émissions de CO₂ très importantes
Montant estimé des dépenses annuelles d'énergie pour un usage standard :
Entre 3220€ et 4410€ par an
Prix moyens des énergies indexés au 1er janvier 2021 (abonnement compris)

Les informations sur les risques auxquels ce bien est exposé sont disponibles sur le site Géorisques https://www.georisques.gouv.fr.

BOSETTA lMMOBiliER Tél : 06 81 59 55 42 E-mail : [email protected] www.bosetta-immobilier.com