Logo Bosetta Immobilier

réf. GM1-1047 Appartement 2 chambres

91 m²
Boulogne Billancourt Parc Pierre de Coubertin

 visite 360° 
Boulogne • Parc Pierre de Coubertin • appartement 91 m² • 2 chambres. Exclusivité.
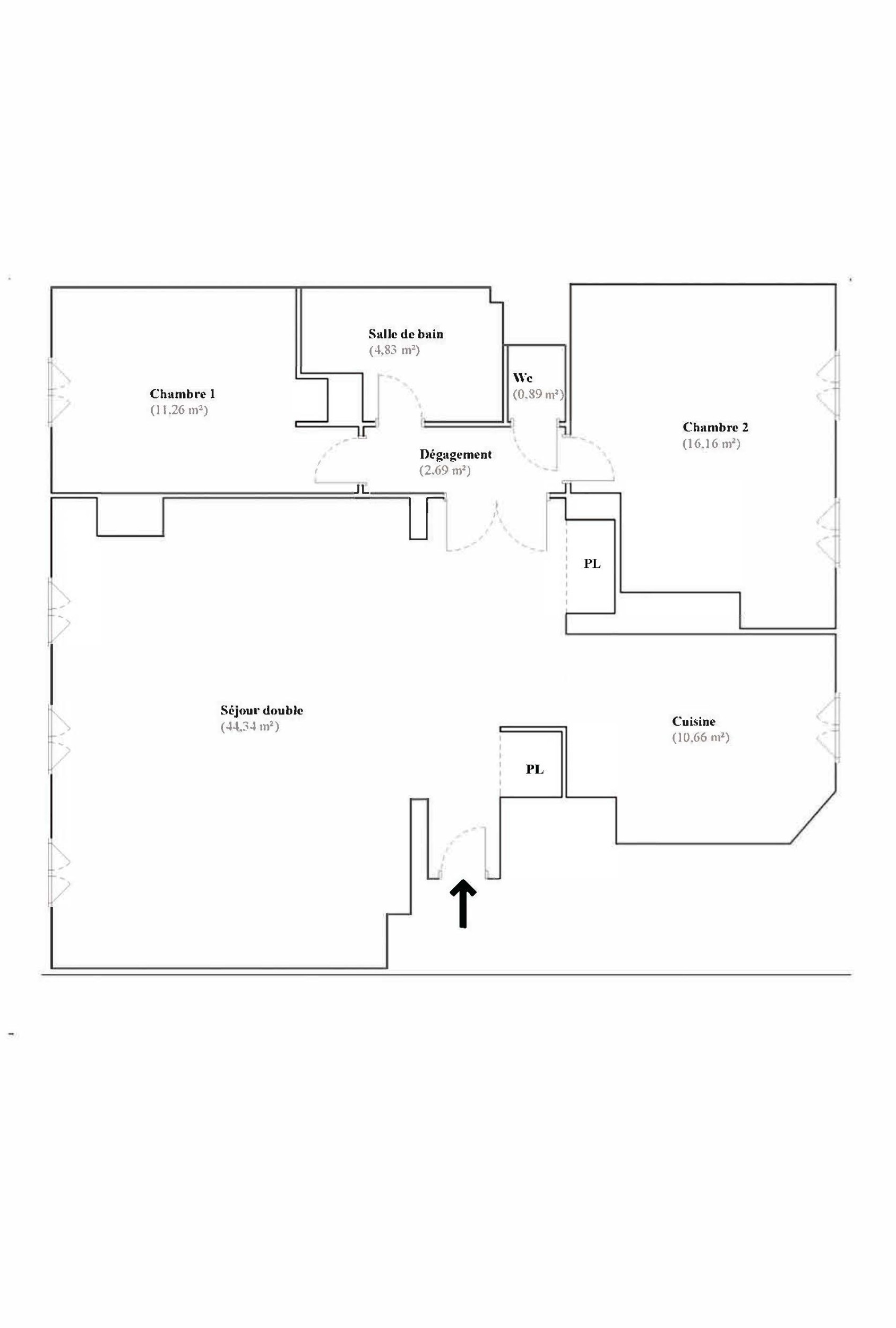
Au 7ème étage d'un immeuble de 1960 avec gardien, appartement traversant très lumineux, bénéficiant d'une vue totalement dégagée sur la Tour Eiffel, sans aucun vis-à-vis. Entrée, double séjour de 44 m², cuisine américaine équipée, 2 belles chambres (16 et 11 m²), salle de bains avec douche et baignoire, wc séparé. Grande cave (10 m²). Local vélos.
Pour plus d'informations ou pour organiser une visite (visite sur place ou visio-visite live), merci de contacter Alain ETJEMESIAN au 06 49 35 21 13 ou votre interlocuteur habituel chez BOSETTA IMMOBILIER. Nous sommes également à votre disposition si vous souhaitez vendre ou faire estimer un bien immobilier à Paris ou sur l'ouest parisien.
  • Surface : 91 m²
  • Pièces : 4
  • Chambres : 2
  • Etage : 7ème
  • Année de construction : 1960
  • Parc Pierre de Coubertin



Diagnostic performances energétiques :

Performance énergétique
logement extrêmement performant
238 kWh/m²/an
12* kg CO₂/m²/an
logement extrêmement peu performant
Performance climatique
* Dont émissions de gaz à effet de serre
peu d'émissions de CO₂
12 kg CO₂/m²/an
émissions de CO₂ très importantes
Montant estimé des dépenses annuelles d'énergie pour un usage standard :
Entre 1270€ et 1770€ par an
Prix moyens des énergies indexés au 1er janvier 2021 (abonnement compris)

Les informations sur les risques auxquels ce bien est exposé sont disponibles sur le site Géorisques https://www.georisques.gouv.fr.

BOSETTA lMMOBiliER Tél : 06 49 35 21 13 E-mail : [email protected] www.bosetta-immobilier.com