Logo Bosetta Immobilier

réf. GM1-1040 Appartement 3 chambres

68 m²
Paris 17ème • Porte de Villiers

 visite 360° 
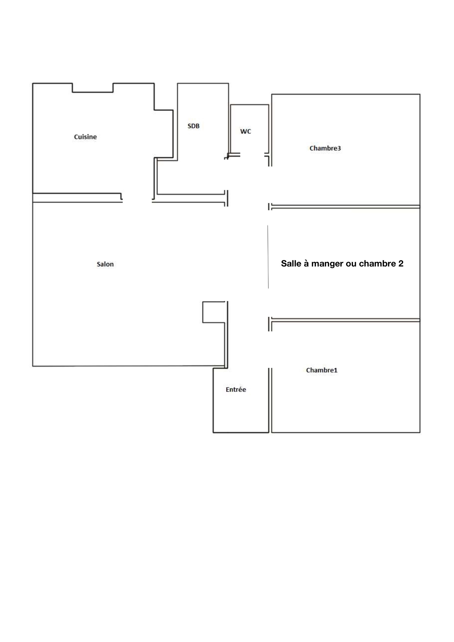
Paris 17ème • Porte de Villiers • appartement 68 m² • 4ème étage • 3 chambres • parking.
Dans un immeuble semi-récent (ravalement et isolation énergétique des façades votés) situé à la frontière de Neuilly, appartement traversant en bon état comprenant : entrée, séjour, cuisine dînatoire séparée, 3 chambres totalement au calme, salle de bains, wc. Cave. Emplacement de parking dans la cour. Local vélos. Gardien. Appartement très lumineux, avec plan parfait et modulable (possibilité de faire un double séjour traversant) à proximité immédiate des commerces, transports et écoles (Blanche de Castille).
Pour plus d'informations ou pour organiser une visite, merci de contacter Nuria SIMIAUT au 06 47 03 73 22 ou votre interlocuteur habituel chez BOSETTA IMMOBILIER. Nous sommes également à votre disposition si vous souhaitez vendre ou faire estimer un bien immobilier à Paris ou sur l'ouest parisien.
  • Surface : 68 m²
  • Pièces : 4
  • Chambres : 3
  • Etage : 4ème
  • Année de construction : 1958
  • 17ème • Porte de Villiers



Diagnostic performances energétiques :

Performance énergétique
logement extrêmement performant
193 kWh/m²/an
39* kg CO₂/m²/an
logement extrêmement peu performant
Performance climatique
* Dont émissions de gaz à effet de serre
peu d'émissions de CO₂
39 kg CO₂/m²/an
émissions de CO₂ très importantes
Montant estimé des dépenses annuelles d'énergie pour un usage standard :
Entre 750€ et 1060€ par an
Prix moyens des énergies indexés au 1er janvier 2021 (abonnement compris)

Les informations sur les risques auxquels ce bien est exposé sont disponibles sur le site Géorisques https://www.georisques.gouv.fr.

BOSETTA lMMOBiliER Tél : 06 47 03 73 22 E-mail : [email protected] www.bosetta-immobilier.com