Logo Bosetta Immobilier

réf. GM1-1014 Appartement 3 chambres

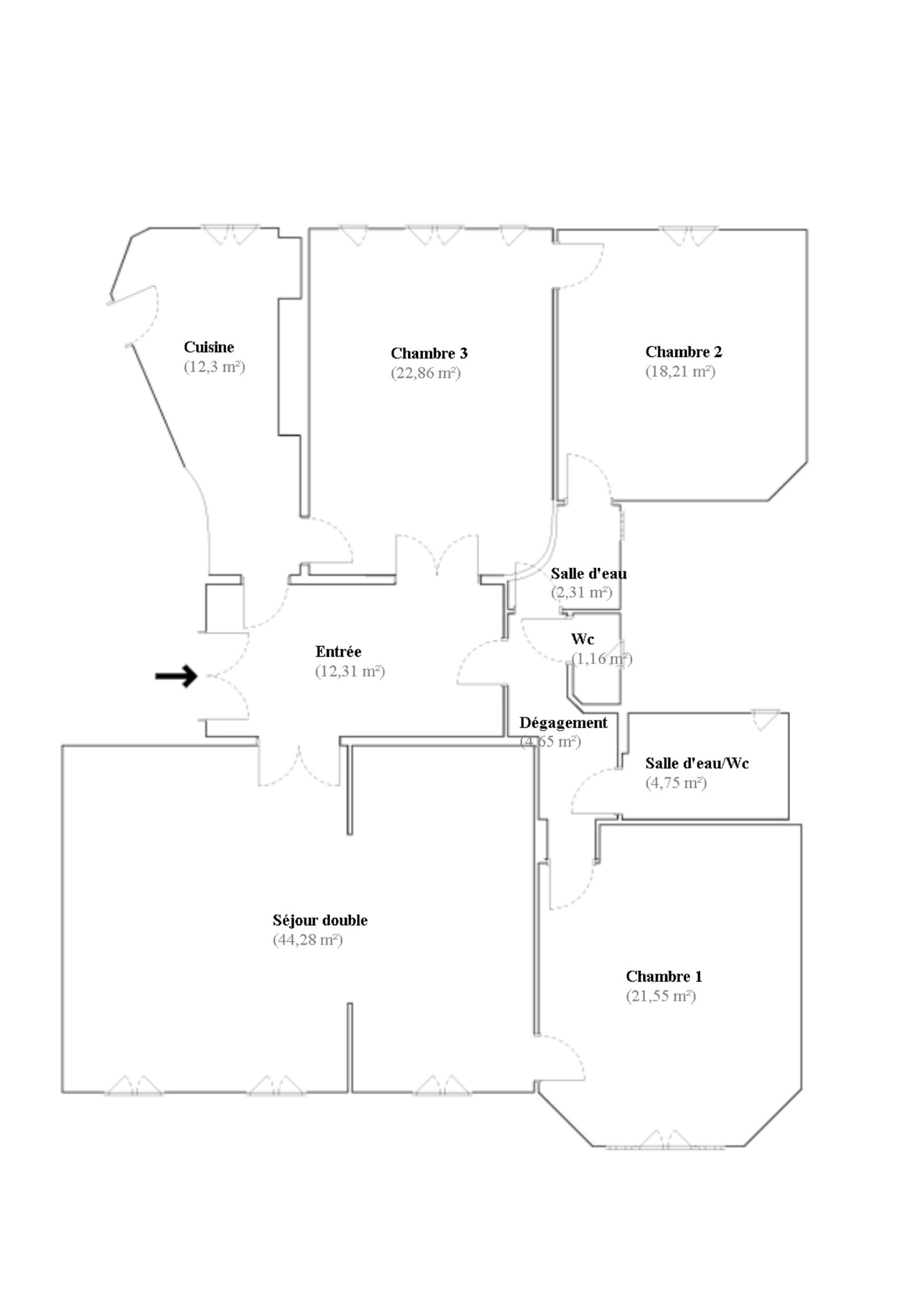
145 m²
Paris 17ème • Courcelles • Péreire

 visite 360° 
Paris 17ème • Courcelles • Péreire • appartement 145 m² • 3ème étage • 3 chambres. Exclusivité.
Dans un bel immeuble Art Déco situé à proximité de la place Péreire et de l'école Sainte-Ursule, appartement en très bon état comprenant : galerie d'entrée, double séjour de 44 m² avec parquet en point de Hongrie et moulures, cuisine séparée entièrement équipée, 3 grandes chambres (23, 22 et 18 m²), 2 salles de douche, 2 wc. Cave. Gardien. Electricité aux normes. Excellent plan sans perte d'espace. Beaux volumes. Vue dégagée sans vis-à-vis.
Pour plus d'informations ou pour organiser une visite (visite sur place ou visio-visite live), merci de contacter Frank BOSETTA au 06 72 14 65 96 ou votre interlocuteur habituel chez BOSETTA IMMOBILIER. Nous sommes également à votre disposition si vous souhaitez vendre ou faire estimer un bien immobilier à Paris ou sur l'ouest parisien.
  • Surface : 145 m²
  • Pièces : 5
  • Chambres : 3
  • Etage : 3ème
  • Année de construction : 1930
  • 17ème • Courcelles • Péreire

BOSETTA lMMOBiliER Tél : 06 72 14 65 96 E-mail : [email protected] www.bosetta-immobilier.com