Logo Bosetta Immobilier

réf. GM1-1011 Appartement 3 chambres

121 m²
Boulogne Billancourt Les Princes - Marmottan • Roland-Garros

 visite 360° 
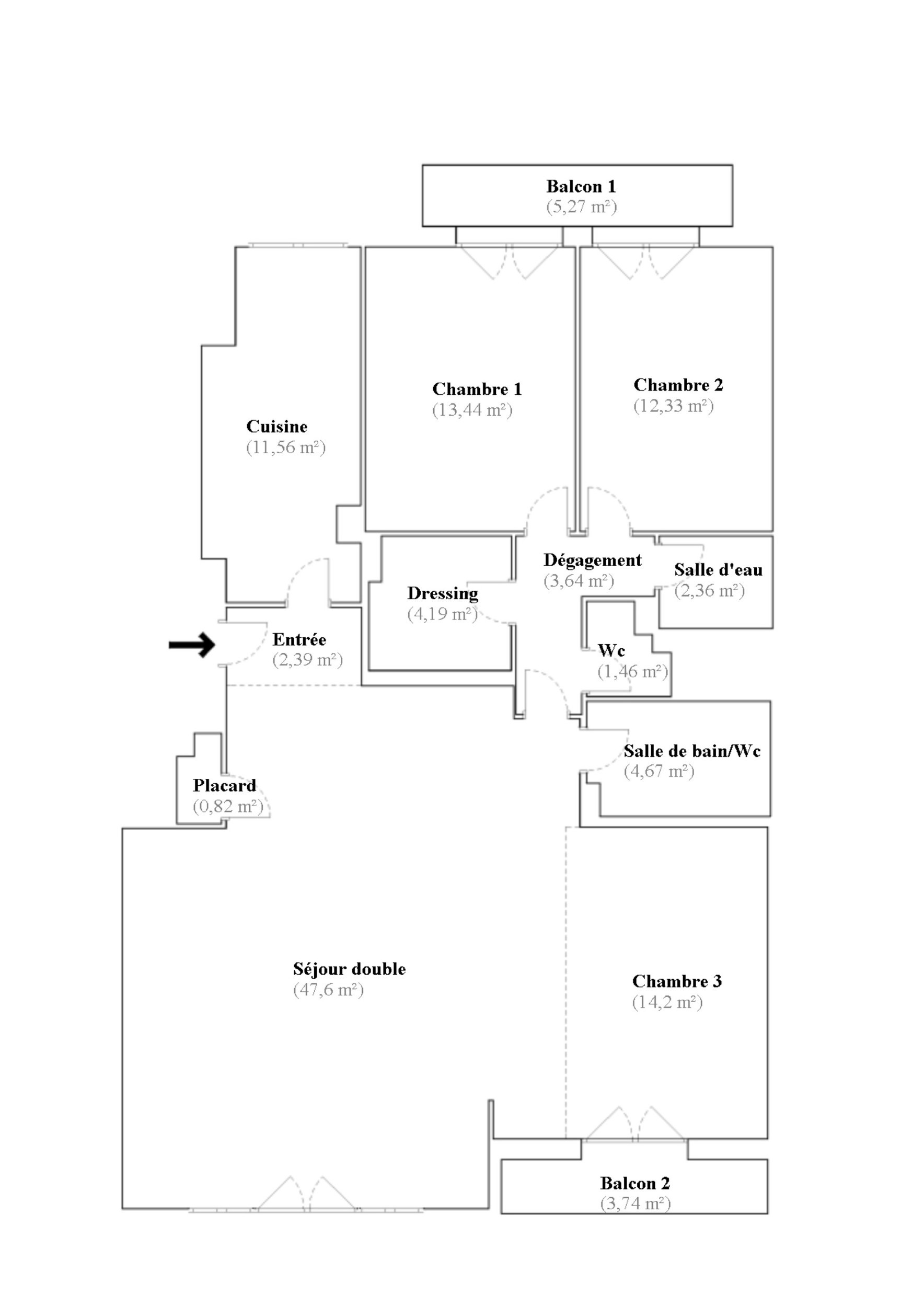
Boulogne • Les Princes - Marmottan • Roland-Garros • appartement 118,66 m² carrez + 2 balcons • 2ème étage • 3 chambres. Exclusivité.
Dans une résidence idéalement située boulevard d'Auteuil, appartement traversant à rénover comprenant : entrée, double séjour de 48 m², cuisine, 3 belles chambres (14, 13 et 12 m²) ouvertes sur balcon, dressing, salle de bains, salle de douche, 2 wc. Cave. Gardien. Possibilité d'acquérir en sus un box (30 000 euros) et une chambre de service de 11,24 m² carrez en rez-de-jardin (95 000 euros).
Pour plus d'informations ou pour organiser une visite (visite sur place ou visio-visite live), merci de contacter Stefany KLEIN au 06 37 22 86 37 ou votre interlocuteur habituel chez BOSETTA IMMOBILIER. Nous sommes également à votre disposition si vous souhaitez vendre ou faire estimer un bien immobilier à Paris ou sur l'ouest parisien.
  • Surface : 121 m²
  • Pièces : 5
  • Chambres : 3
  • Etage : 2ème
  • Année de construction : 1961
  • Les Princes - Marmottan • Roland-Garros

BOSETTA lMMOBiliER Tél : 06 37 22 86 37 E-mail : [email protected] www.bosetta-immobilier.com