Logo Bosetta Immobilier

réf. GM1-1009 Maison 5 chambres

280 m²
Germigny L Eveque 77910

 visite 360° 
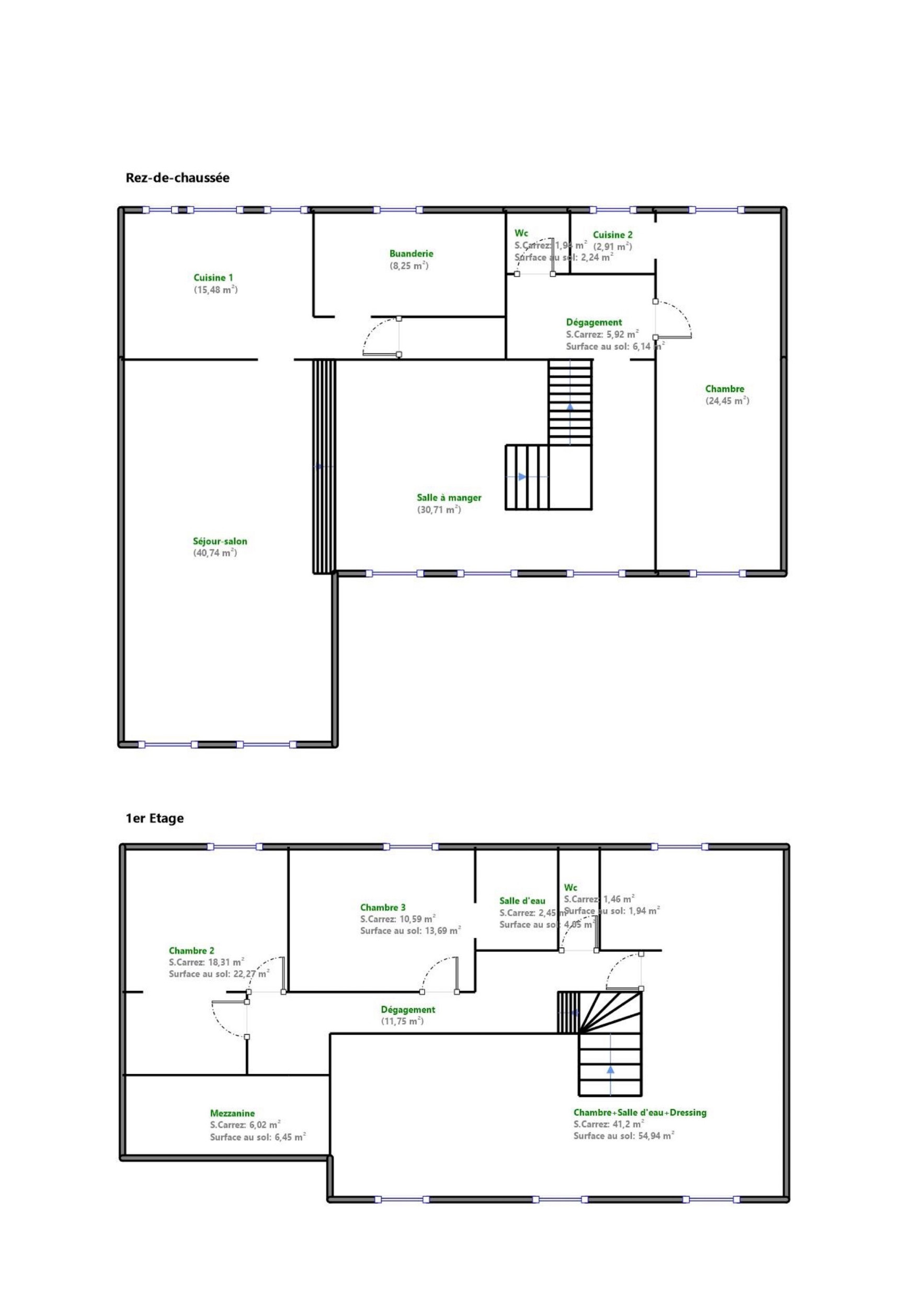
Germigny l'Évêque • 77910 • maison 5 chambres • 222 m² carrez (388 m² au sol) • piscine • terrain 3 150 m². Exclusivité.
Idéalement située à 1 heure de Paris (60 km via A1), sur un terrain arboré entièrement clos, maison en parfait état comprenant : immense pièce à vivre avec cheminée, cuisine totalement aménagée et équipée avec verrière, bureau sur mezzanine, 5 chambres (dont une aménagée en studio avec kitchenette et entrée indépendante), 2 dressings, 3 salles de douche, buanderie. Sous-sol total : chaufferie, cave à vin, salle de sport, garage. Terrasse. Piscine. Pool house. Cuisine d'été. Calme absolu. Aucun vis-à-vis. A 3 mn de la Marne et de la Réserve naturelle du Grand Voyeux.
Pour plus d'informations ou pour organiser une visite (visite sur place ou visio-visite live), merci de contacter Frank BOSETTA au 06 72 14 65 96 ou votre interlocuteur habituel chez BOSETTA IMMOBILIER. Nous sommes également à votre disposition si vous souhaitez vendre ou faire estimer un bien immobilier à Paris ou sur l'ouest parisien.
  • Surface : 280 m²
  • Pièces : 8
  • Chambres : 5
  • 77910

BOSETTA lMMOBiliER Tél : 06 72 14 65 96 E-mail : [email protected] www.bosetta-immobilier.com