Logo Bosetta Immobilier

réf. GM1-852 Appartement 4 chambres

235 m²
Paris 17ème • Péreire • Sainte-Ursule

vidéo    •••    visite 360°
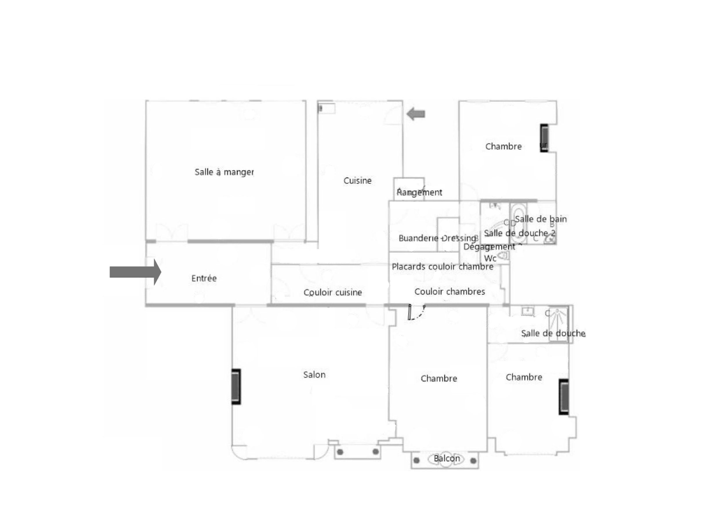
Paris 17ème • Péreire • Sainte-Ursule • appartement 235 m² + balcon • 2ème étage • 3/4 chambres. Exclusivité.
Dans un immeuble Haussmannien de très grand standing idéalement situé face aux tennis du boulevard Péreire, à proximité de Sainte-Ursule, appartement très ensoleillé (orienté sud) avec vue totalement dégagée sans vis-à-vis. Entrée, triple réception de 86 m² avec parquet, moulures et cheminées, grande cuisine dînatoire (23 m²), 3 belles chambres (23, 21 et 19 m²), possibilité 4ème chambre, dressing, salle de bains, 2 salles de douche, buanderie. Double cave (27 m²). Beaux volumes (hauteur sous plafond : 3,50 m). Gardien. Possibilité d'acquérir un parking dans l'immeuble voisin (45 000 euros).
Pour plus d'informations ou pour organiser une visite (visite sur place ou visio-visite live), merci de contacter Frank BOSETTA au 06 72 14 65 96 ou votre interlocuteur habituel chez BOSETTA IMMOBILIER. Nous sommes également à votre disposition si vous souhaitez vendre ou faire estimer un bien immobilier à Paris ou sur l'ouest parisien.
  • Surface : 235 m²
  • Pièces : 7
  • Chambres : 4
  • Etage : 2ème
  • Année de construction : 1900
  • 17ème • Péreire • Sainte-Ursule

BOSETTA lMMOBiliER Tél : 06 72 14 65 96 E-mail : [email protected] www.bosetta-immobilier.com