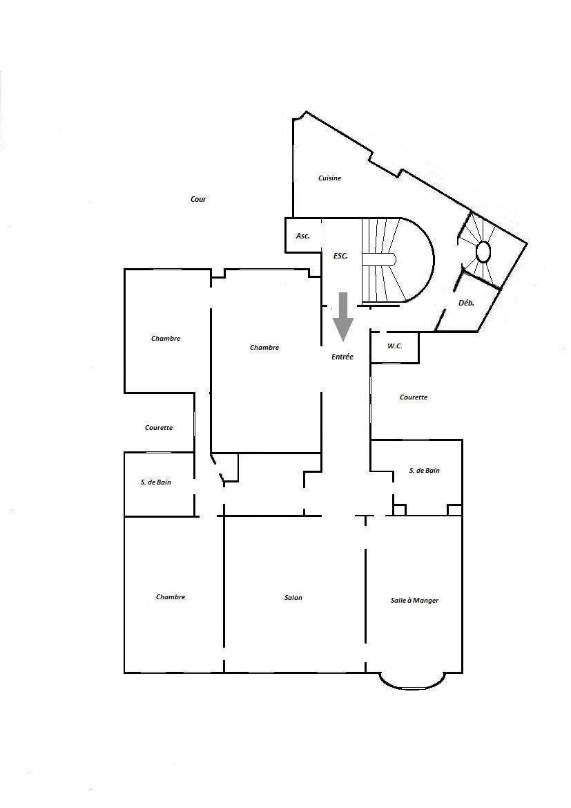
Paris 8ème • Ponthieu • Saint-Philippe du Roule • appartement 169 m² • 3ème étage • 3 chambres. 
                            Dans un immeuble ancien de bon standing situé dans un quartier animé, appartement comprenant : entrée, double séjour de 47 m² avec parquet, moulures et cheminées, cuisine dînatoire, 3 belles chambres  (25, 20 et 13 m²), 2 salles de bains, 2 wc, débarras. Proximité commerces, restaurants et écoles. Cave. Chambre de service (non louable). Gardien. Possibilité 2 places de parking (en sus) à 100 m. Pour plus d'informations ou pour organiser une visite, merci de contacter Nuria SIMIAUT au 06 47 03 73 22 ou votre interlocuteur habituel chez BOSETTA IMMOBILIER. Nous sommes également à votre disposition si vous souhaitez vendre ou faire estimer un bien immobilier à Paris ou sur l'ouest parisien.
            
                        
        
            
                - Surface : 169 m²
 
                                - Pièces : 5
 
                - Chambres : 3
 
                                                                - Etage :
                                        3ème
                                    
 
                
                                - Année de construction : 1898
 
                
                
                                - 8ème • Ponthieu • Saint-Philippe du Roule