Logo Bosetta Immobilier

réf. GM1-1083 Appartement 3 chambres

650 000 € FAI 171 m²
Bordeaux Saint-Genès

 visite 360° 
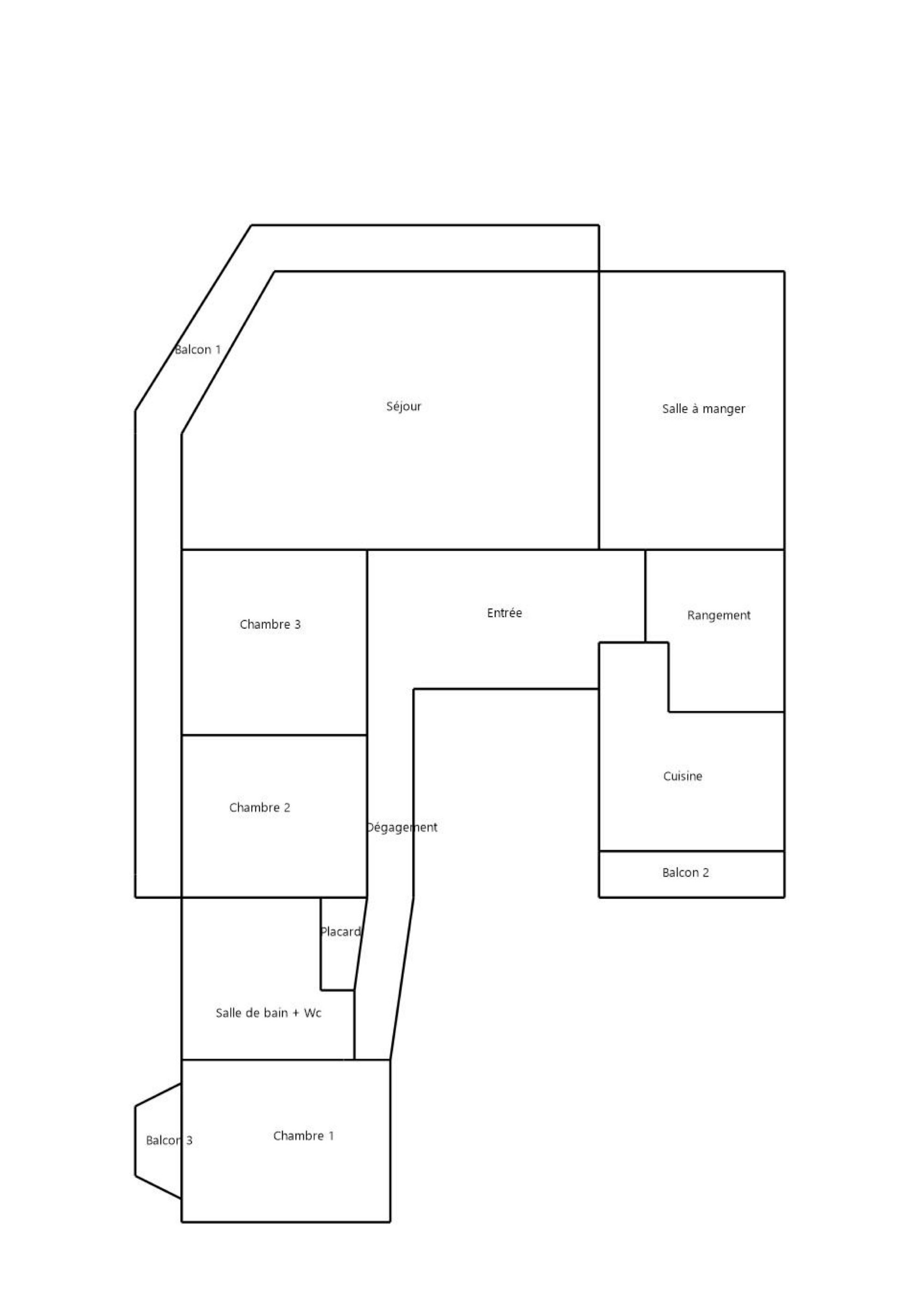
Bordeaux • Saint-Genès • appartement 171 m² + balcon filant • 3 chambres • garage.
Idéalement situé en plein cœur du quartier résidentiel Saint-Genès, dans une petite copropriété avec ascenseur, appartement familial à rénover au premier étage. Entrée, double séjour de 66 m² avec parquet, moulures et cheminée, cuisine séparée ouvrant sur balcon plein soleil, 3 belles chambres, dressing, salle de bains, wc. Balcon filant. Un garage fermé et une cave complètent l'ensemble. L'appartement se situe à quelques pas de plusieurs écoles privées et publiques, commerces, parc, transports (ligne B du tramway, bus).
Possibilité professions libérales.
Pour plus d'informations ou pour organiser une visite, merci de contacter Hermine MEILLAN MARCONI au 06 81 59 55 42 ou votre interlocuteur habituel chez BOSETTA IMMOBILIER. Nous sommes également à votre disposition si vous souhaitez vendre ou faire estimer un bien immobilier à Bordeaux ou sur le Bassin d'Arcachon.



Diagnostic performances energétiques :

Performance énergétique
logement extrêmement performant
116 kWh/m²/an
3* kg CO₂/m²/an
logement extrêmement peu performant
Performance climatique
* Dont émissions de gaz à effet de serre
peu d'émissions de CO₂
3 kg CO₂/m²/an
émissions de CO₂ très importantes
Montant estimé des dépenses annuelles d'énergie pour un usage standard :
Entre 1210€ et 1690€ par an
Prix moyens des énergies indexés au 1er janvier 2021 (abonnement compris)

Les informations sur les risques auxquels ce bien est exposé sont disponibles sur le site Géorisques https://www.georisques.gouv.fr.
  • Surface : 171 m²
  • Pièces : 5
  • Chambres : 3
  • Etage : 1er
  • Charges : 150 € / mois
  • Saint-Genès

BOSETTA lMMOBiliER Tél : 06 81 59 55 42 E-mail : [email protected] www.bosetta-immobilier.com